map icon

Bauland zur Verkauf

Labin
€ 235.000
1.650 m²

Notiz

Anzeige aktualisiert am: 17.11.2025
Beschreibung

This description has been translated automatically and may not be accurate

Referenz: 14336

Grundstück Rabac, Labin, 1.650m2

RABAC, LABIN

Hochmodernes Projekt für eine Villa mit Swimmingpool auf einem großzügigen Grundstück von 1650 m2, nur 2 km vom Meer entfernt, mit Meerblick.

Lage an der Ostküste Istriens, ca. 13 km von der Stadt Labin, 50 km von Pula und dem Flughafen sowie von Opatija entfernt.

In unmittelbarer Nähe befindet sich der Parkplatz und der Hafen von Tunarica (2 km).

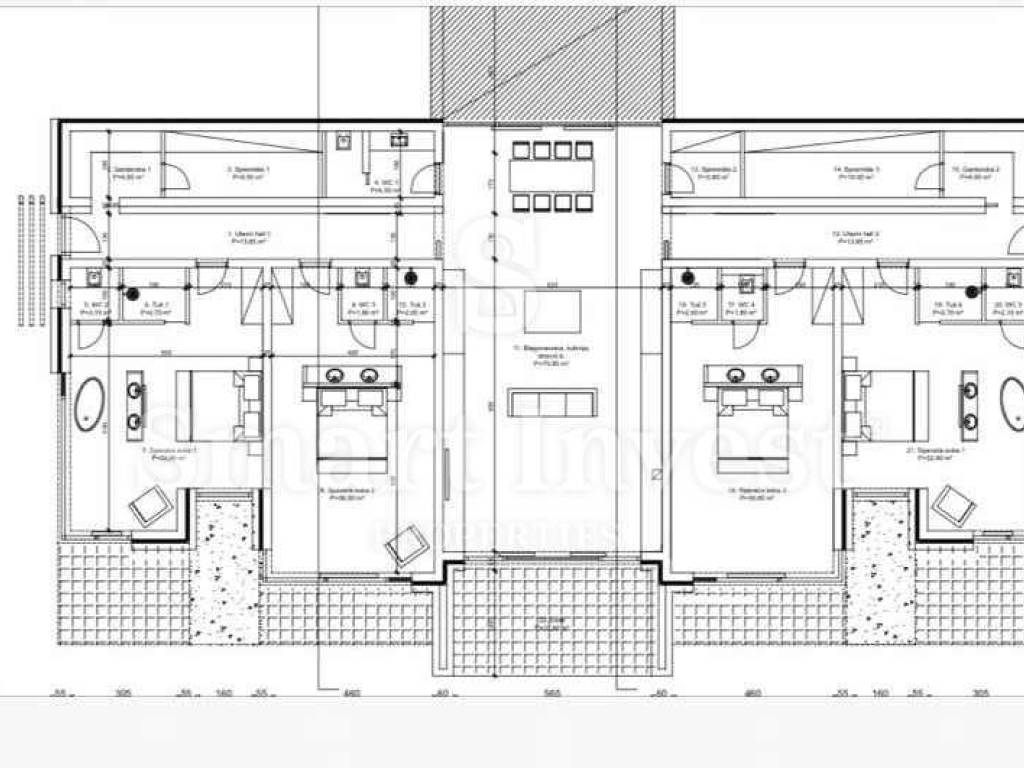
Für eine großzügige Villa, ein einstöckiges Haus mit vier Schlafzimmern, mit einer Bruttofläche von 330 m2 wurde eine Baugenehmigung erteilt.

Die Gebühren sind bezahlt und der Bau kann beginnen.

Die Zufahrt erfolgt direkt über die asphaltierte Ortsstraße, Wasser und Strom sind auf dem Grundstück vorhanden.

Eine ausgezeichnete Lage sowohl für ein Ferienhaus als auch zum Wohnen. Ruhige und entspannende Lage.

Freier Blick auf das Meer, nah am Meer.

Eigentum ordentlich, keine Belastungen.

Es wird von einer juristischen Person verkauft, der Preis gilt für juristische Personen, und wenn der Käufer eine natürliche Person ist, wird dem Preis Mehrwertsteuer hinzugefügt.

Für weitere Informationen und eine Tour rufen Sie +385/99/320-0011 an

ID CODE: 14336

Danijela Urlić - PODRUČJE ISTRA
Agent s licencom
Mob: +385/(0)99/320-0011
E-mail: danijela.urlic@smart-invest.hr
www.smart-invest.hr
Wenn Sie mehr wissen möchten, können Sie mit Danijela Urlić - PODRUČJE ISTRA. sprechen
Merkmale
Vertrag
Verkauf
Art
Bauland
Fläche
1.650 m²
Preisinformationen
Preis
€ 235.000
Preis pro m²
142 €/m²
Entdecken Sie jeden Winkel des Anwesens
+7
Zusätzliche Optionen

Inserenten kontaktieren

Oder
agent male

Danijela Urlić - PODRUČJE ISTRA