map icon

Einfamilienhaus 179 m², neu, Privlaka

Privlaka
€ 850.000
5+
179 m²
3+
Terrasse

Notiz

Anzeige aktualisiert am: 17.11.2025
Beschreibung

This description has been translated automatically and may not be accurate

Referenz: 35956

ZADAR, PRIVLAKA - Elegantes Haus 110 Meter vom Strand entfernt! Neubau! UND

ZADAR, PRIVLAKA - Elegantes Haus 110 Meter vom Strand entfernt! Neubau! A.

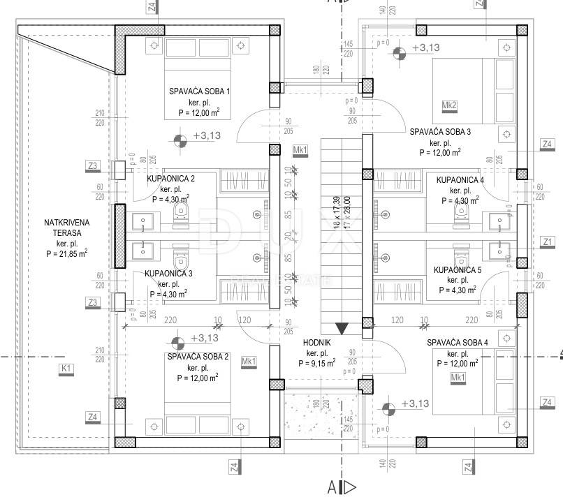
Eine moderne Villa zum Verkauf, nur 110 Meter vom Strand entfernt, die eine Kombination aus Luxus, Komfort und einem wunderschönen Blick auf das Meer bietet. Dieses neue Gebäude mit Swimmingpool erstreckt sich über ein Grundstück von 401 m2, während die Nettofläche des Hauses 179,58 m2 beträgt. Im Erdgeschoss gibt es eine Garage, ein Badezimmer, eine Waschküche, ein geräumiges Wohnzimmer, ein Esszimmer, eine Küche und eine überdachte Terrasse, ideal, um warme Abende am Pool zu genießen. Im Obergeschoss befinden sich vier Schlafzimmer mit jeweils eigenem Bad und Zugang zu einer überdachten Terrasse mit Blick auf das Meer. Die Villa ist im gesamten Haus mit Fußbodenheizung und Klimaanlage in allen Räumen ausgestattet und sorgt so das ganze Jahr über für eine angenehme Atmosphäre. Dies ist eine einzigartige Gelegenheit für diejenigen, die eine Luxusimmobilie in der Nähe des Meeres suchen, perfekt für den Urlaub oder als Investition. Kontaktieren Sie uns für weitere Informationen und um eine Tour zu vereinbaren!

Sehr geehrte Kunden, die Agenturprovision wird gemäß den Allgemeinen Geschäftsbedingungen berechnet: www.dux-nekretnine.hr/opci-uvjeti-poslovanja

ID CODE: 35956

Josip Šestan
Agent s licencom
Mob: +385 91 799 6986
Tel: +385 91 480 8808
E-mail: josip@dux-dalmacija.com
www.dux-dalmacija.com
Wenn Sie mehr wissen möchten, können Sie mit Josip Šestan. sprechen
Merkmale
Art
Einfamilienhaus
Vertrag
Verkauf
Etage
1
Fläche
179 m² | gewerblich 580 m²
Zimmer
5+
Schlafzimmer
4
Badezimmer
3+
Balkon
Nein
Terrasse
Ja
Garage, parkplätze (auto)
1 in lager/garage
Klimaanlage
Eigenständig, kalt / warm
Andere Merkmale
  • Pool
Oberflächendetail

Wohnung

Etage
1
Fläche
179,0 m²
Koeffizient
100%
Flächenart
Hauptsächlich
Verkaufsfläche
179,0 m²

Grundstück

Etage
Erdgeschoss
Fläche
401,0 m²
Koeffizient
100%
Flächenart
zusätzlich
Verkaufsfläche
401,0 m²
Preisinformationen
Preis
€ 850.000
Preis pro m²
1.466 €/m²
Energieeffizienz
  • Baujahr

    2025
  • Zustand

    Neu / Im Bau
  • Klimatisierung

    Eigenständig, kalt / warm
  • Energieausweis

    Befreit
Entdecken Sie jeden Winkel des Anwesens
+13
Zusätzliche Optionen

Inserenten kontaktieren

Oder