Einfamilienhaus 142 m², neu, Vir

€ 470.000
4
142 m²
3+

Notiz

Anzeige aktualisiert am: 30.04.2026
Beschreibung

This description has been translated automatically and may not be accurate

Referenz: 35780

ZADAR, VIR - Modernes Haus mit Pool S2 - Meerblick!

ZADAR, VIR - Modernes Haus mit Pool - Meerblick!

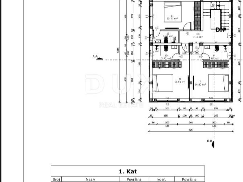
Wir bieten Ihnen die einmalige Gelegenheit, in einem luxuriösen, modern gestalteten Haus auf der wunderschönen Insel Vir zu leben. Diese Immobilie bietet eine Kombination aus hochwertigen Materialien, innovativem Design und Komfort, die selbst die anspruchsvollsten Ansprüche zufriedenstellt. Aufgrund seiner außergewöhnlichen Lage bietet dieses Haus von jeder Etage aus einen unglaublichen Meerblick. Im Erdgeschoss finden Sie einen überdachten Eingang, der zu einem großzügigen Flur führt. Die offene Küche und das Esszimmer bieten Ihnen Platz für Familienessen und Partys, während das Wohnzimmer ideal zum Entspannen und Genießen der angenehmen Atmosphäre ist. Darüber hinaus gibt es im Erdgeschoss ein Gäste-WC und eine Innentreppe, die in den ersten Stock führt. Im Obergeschoss gibt es einen Flur, der zu drei luxuriösen Schlafzimmern führt, jedes mit eigenem Bad und sorgt so für absoluten Komfort und Privatsphäre. Jedes Zimmer ist mit einer Klimaanlage ausgestattet und das Haus verfügt über eine Fußbodenheizung im Wohnzimmer, sodass Ihr Aufenthalt zu jeder Jahreszeit angenehm ist. Die Innentreppe führt Sie auf die 70 m große Dachterrasse, die den perfekten Ort bietet, um den Panoramablick auf das Meer und die Umgebung zu genießen, ideal zum Entspannen und geselligen Beisammensein im Freien. Das Haus ist aus hochwertigen Materialien gebaut, darunter ein gemauerter Thermoblock, der für eine hervorragende Wärmedämmung sorgt. Die Fassade ist mit 10 cm dickem Styropor verkleidet und PVC-Jalousien und Moskitonetze sorgen für Funktionalität und Komfort. Bei den Bodenbelägen handelt es sich um hochwertige Keramik, die eine einfache Pflege und ein elegantes Erscheinungsbild des Raumes ermöglicht. Der Außenbereich wird durch einen 25 m großen Swimmingpool vervollständigt, der sich perfekt für Sommertage und Entspannung eignet. Neben dem Pool gibt es auch zwei Parkplätze und einen Garten, der Privatsphäre und Raum zum Genießen der Natur bietet. Die gepflasterte Auffahrt ermöglicht einen einfachen Zugang zum Haus und macht es so praktisch und einfach für den täglichen Gebrauch. Die Fertigstellung der Arbeiten ist für Sommer 2025 geplant und das Haus wird bezugsfertig sein, sodass Sie die Möglichkeit haben, Eigentümer einer Luxusimmobilie auf einer der schönsten Adriainseln zu werden.

Sehr geehrte Kunden, die Vermittlungsprovision wird gemäß den Allgemeinen Geschäftsbedingungen berechnet. https://www.dux-nekretnine.hr/opci-uvjeti-poslovanja

ID CODE: 35780

Dux Zadar
Mob: +385 99 448 3756
Tel: +385 91 480 8808
E-mail: info@dux-nekretnine.hr
www.dux-dalmacija.com
Merkmale
Art
Einfamilienhaus
Vertrag
Verkauf
Fläche
142 m²
Zimmer
4
Schlafzimmer
3
Badezimmer
3+
Balkon
Nein
Terrasse
Nein
Klimaanlage
Eigenständig, kalt / warm
Andere Merkmale
  • Pool
Preisinformationen
Preis
€ 470.000
Preis pro m²
3.310 €/m²
Energieeffizienz

Energieverbrauch

A

Entdecken Sie jeden Winkel des Anwesens
+23
Zusätzliche Optionen

Inserenten kontaktieren

Oder