map icon

Bauland zur Verkauf

Dobrinj
€ 239.000
696 m²

Notiz

Anzeige aktualisiert am: 17.11.2025
Beschreibung

This description has been translated automatically and may not be accurate

Referenz: 30174

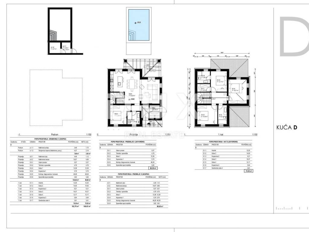
INSEL KRK, TRIBULJE - Baugrundstück mit Projekt

INSEL KRK, TRIBULJE - Baugrundstück mit Projekt für ein Einfamilienhaus mit Swimmingpool

Baugrundstück von 696,03 m2 zu verkaufen. Projekt zum Bau eines Einfamilienhauses D mit Swimmingpool und Garten, das in ein Erdgeschoss und ein Obergeschoss unterteilt ist. Im Erdgeschoss des Hauses gibt es einen offenen Wohnbereich mit Küche und Esszimmer mit Zugang zu einer überdachten Terrasse, Garten und Swimmingpool sowie ein Schlafzimmer mit eigenem Bad. Im ersten Stock des Hauses haben wir drei weitere Schlafzimmer, jeweils mit eigenem Bad. Die Gesamtfläche des Hauses beträgt 183,60 m2. Das Haus verfügt über zwei Parkplätze im Hof. Das Projekt wird mit Baugenehmigung verkauft, Preis auf Anfrage, die Möglichkeit einer Vereinbarung mit dem Verkäufer über den Bau und Verkauf in der schlüsselfertigen Phase.

Sehr geehrte Kunden, die Vermittlungsprovision wird gemäß den Allgemeinen Geschäftsbedingungen berechnet. www.dux-nekretnine.hr/opci-uvjeti-poslovanja

ID CODE: 30174

Darko Miculinić
Vanjski suradnik
Mob: +385 91 899 5705
Tel: +385 91 480 8808
E-mail: darko@dux-nekretnine.hr
www.dux-nekretnine.hr
Wenn Sie mehr wissen möchten, können Sie mit Darko Miculinić. sprechen
Merkmale
Vertrag
Verkauf
Art
Bauland
Fläche
696 m²
Preisinformationen
Preis
€ 239.000
Preis pro m²
343 €/m²
Entdecken Sie jeden Winkel des Anwesens
+10
Zusätzliche Optionen

Inserenten kontaktieren

Oder