Einfamilienhaus 3946 m², neu, Dobrinj

€ 1
5+
3.946 m²
3+
Terrasse

Notiz

Anzeige aktualisiert am: 01.05.2026
Beschreibung

This description has been translated automatically and may not be accurate

Referenz: 26489

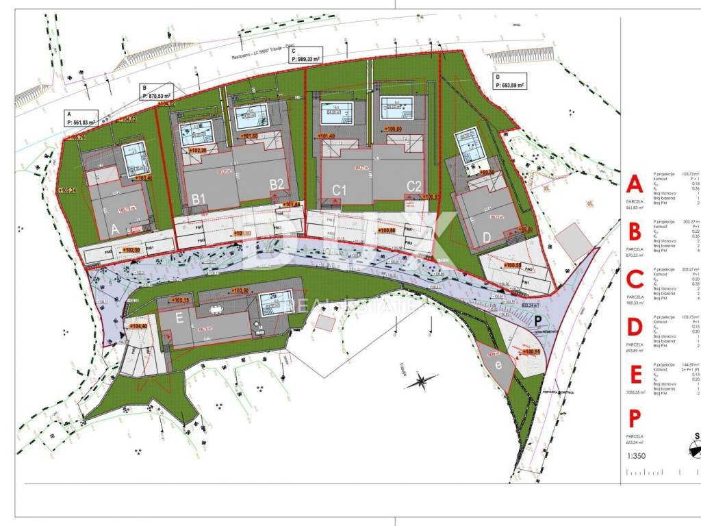
INSEL KRK, TRIBULJE ein Projekt von 5 Wohneinheiten mit Schwimmbädern

INSEL KRK, TRIBULJE Resortprojekt mit 5 Wohneinheiten mit Schwimmbädern.

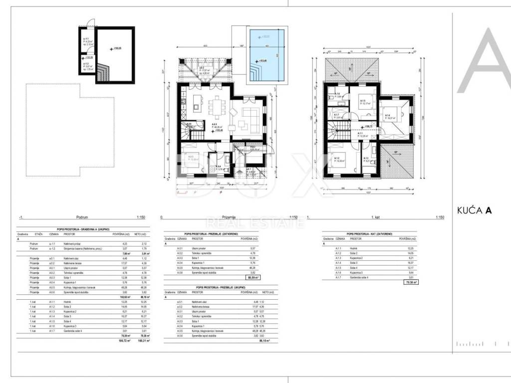
Das Projekt steht zum Verkauf, eine Baugenehmigung liegt vor. Das Projekt ist als Resort mit 5 Wohneinheiten konzipiert, davon zwei Maisonetten, sodass insgesamt 7 Wohneinheiten mit jeweils eigenem Pool vorhanden sind. Der kleine Ort Tribulje liegt im Nordosten der Insel Krk, im Inselinneren, wenige Kilometer von der Bucht von Soline entfernt (ca. 3 km vom Meer entfernt). Es wird als Set oder teilweise verkauft. Das Projekt wird mit Baugenehmigung verkauft, Preis auf Anfrage, die Möglichkeit einer Vereinbarung mit dem Verkäufer über den Bau und Verkauf in der schlüsselfertigen Phase. Sehr geehrte Kunden, die Vermittlungsprovision wird gemäß den Allgemeinen Geschäftsbedingungen berechnet. www.dux-nekretnine.hr/opci-uvjeti-poslovanja

ID CODE: 26489

Darko Miculinić
Vanjski suradnik
Mob: +385 91 899 5705
Tel: +385 91 480 8808
E-mail: darko@dux-nekretnine.hr
www.dux-nekretnine.hr
Wenn Sie mehr wissen möchten, können Sie mit Darko Miculinić. sprechen
Merkmale
Art
Einfamilienhaus
Vertrag
Verkauf
Etage
1
Fläche
3.946 m² | gewerblich 4.546 m²
Zimmer
5+
Schlafzimmer
15
Badezimmer
3+
Balkon
Nein
Terrasse
Ja
Andere Merkmale
  • Pool
Oberflächendetail

Wohnung

Etage
1
Fläche
3.946,0 m²
Koeffizient
100%
Flächenart
Hauptsächlich
Verkaufsfläche
3.946,0 m²

Grundstück

Etage
Erdgeschoss
Fläche
600,0 m²
Koeffizient
100%
Flächenart
zusätzlich
Verkaufsfläche
600,0 m²
Preisinformationen
Preis
€ 1
Preis pro m²
0 €/m²
Energieeffizienz

Energieverbrauch

A+

Entdecken Sie jeden Winkel des Anwesens
+23
Zusätzliche Optionen

Inserenten kontaktieren

Oder