map icon

Bauland zur Verkauf

Opatija
€ 320.000
650 m²

Notiz

Anzeige aktualisiert am: 17.11.2025
Beschreibung

This description has been translated automatically and may not be accurate

Referenz: 25517

OPATIJA, IČIĆI Baugrundstück für Villa mit Pool in der Nähe von Opatija mit Baugenehmigung, Meerblick

OPATIJA, IČIĆI Baugrundstück für eine Villa in der Nähe von Opatija mit Baugenehmigung, Meerblick Wir vermitteln die Möglichkeit, ein schönes

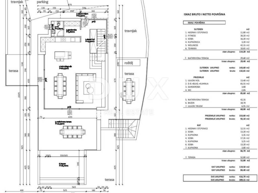
Grundstück für den Bau eines Hauses in der Nähe von Opatija zu kaufen. Es handelt sich um ein Baugrundstück von 650 m mit einer Baugenehmigung für eine moderne Villa von 417 m mit eigenem Pool. Das Baugrundstück liegt in einer Privatstraße mit einer äußerst hochwertigen Nachbarschaft, nur 3 Autominuten vom Strand Ičići entfernt. Die Straße ist vom Grün des Učka-Gebirges umgeben und bietet einen wunderschönen Panoramablick auf das Meer. Dem Projekt zufolge wird die zukünftige Villa aus einem Keller mit Wellnessbereich und Zugang zu einem eigenen Swimmingpool, einem großen offenen Erdgeschoss und einem ersten Stock mit Schlafzimmern bestehen. (INSGESAMT 4 SCHLAFZIMMER, 4 BADEZIMMER + 1 TOILETTE!) Die oben erwähnte Aussicht ist fantastisch und die hohe Lage garantiert die Aussicht für immer. Das Feld verfügt über Strom- und Wasseranschluss und der Bau kann sofort beginnen. Wenige Meter vom Grundstück entfernt beginnt die landwirtschaftliche Zone, in der es keine Bebauung gibt und so eine friedliche Umgebung gewährleistet ist. Die Fahrt zum Meer beträgt 1,8 km und die 900 Meter lange Abfahrt (auch mit dem Flugzeug) dauert etwa 10 Minuten zu Fuß. Fantastische Gelegenheit, eine private Villa mit Swimmingpool in Ičići, dem schönsten Ort neben Opatija, zu bauen.

Sehr geehrte Kunden, die Agenturprovision wird gemäß den Allgemeinen Geschäftsbedingungen www.dux-nekretnine.hr/opci-uvjeti-poslovanja berechnet

ID CODE: 25517

Marko Šutanovac
Agent s licencom
Mob: +385 91 189 8332
Tel: +385 91 480 8808
E-mail: marko@dux-nekretnine.hr
www.dux-opatija.com
Wenn Sie mehr wissen möchten, können Sie mit Marko Šutanovac. sprechen
Merkmale
Vertrag
Verkauf
Art
Bauland
Fläche
650 m²
Preisinformationen
Preis
€ 320.000
Preis pro m²
492 €/m²
Entdecken Sie jeden Winkel des Anwesens
+5
Zusätzliche Optionen

Inserenten kontaktieren

Oder