Einfamilienhaus 110 m², neu, Pirovac

€ 320.000
5
110 m²
2
Terrasse

Notiz

Anzeige aktualisiert am: 04.02.2026
Beschreibung

This description has been translated automatically and may not be accurate

Referenz: 25398

ŠIBENIK, PIROVAC - Modernes Duplex-Apartment mit Swimmingpool in einem Neubau

ŠIBENIK, PIROVAC Modernes Duplex-Apartment mit Pool in einem Neubau

DUX Real Estate präsentiert ein modernes Duplex-Apartment mit Pool in ruhiger Lage in Pirovac, nur 700 Meter vom Meer und einem gepflegten Kiesstrand entfernt.

Das Gebäude befindet sich in der Endphase der Bauarbeiten und wird voraussichtlich Ende des Jahres fertiggestellt.

Dieses moderne, zweigeschossige Haus besticht durch hohe Qualität, Funktionalität und zeitgemäßes Design. Es bietet eine Wohnfläche von 110 m auf einem 500 m großen Grundstück mit einem 150 m großen Garten.

Das Haus besteht aus Erdgeschoss und Obergeschoss, die durch eine Innentreppe verbunden sind.

Im Erdgeschoss befinden sich ein geräumiges Wohnzimmer, eine offene Küche mit Essbereich, ein Badezimmer, ein Abstellraum, ein Flur und ein Zugang zu einer überdachten Terrasse. Von dort gelangt man in einen gepflegten Innenhof mit einem 21 m großen Pool und drei privaten Parkplätzen. Im ersten Stock befinden sich drei komfortable Schlafzimmer, ein Badezimmer und eine überdachte Terrasse ideal zum Entspannen und Genießen der ruhigen Umgebung.

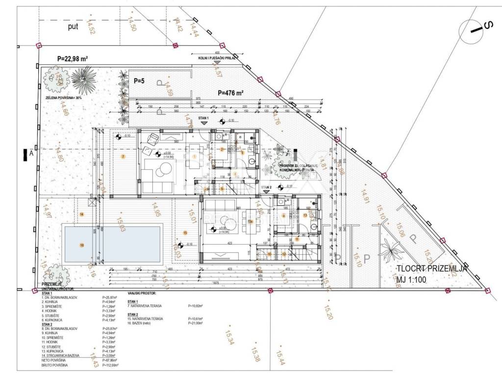
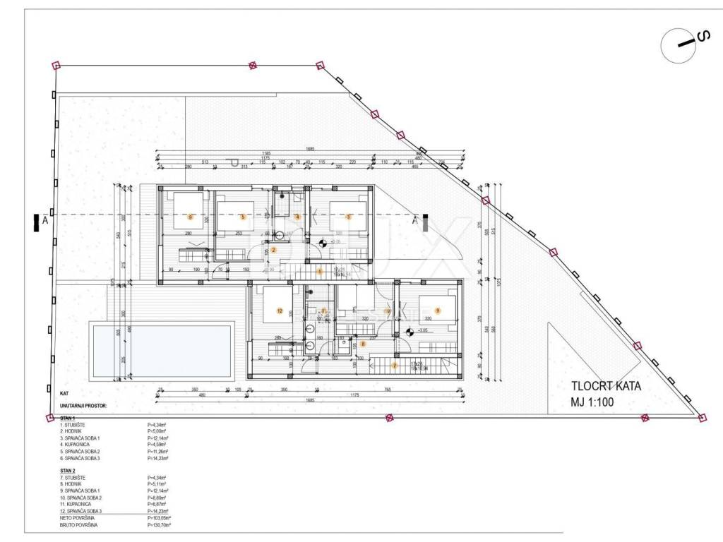
Grundriss:

Erdgeschoss:

Offener Wohn-, Küchen- und Essbereich

Badezimmer

Abstellraum

Flur

Überdachte Terrasse

Obergeschoss:

Drei Schlafzimmer

Badezimmer

Überdachte Terrasse

Ausstattung:

Fertigstellung der Arbeiten bis Ende des Jahres geplant

Entfernung zum Meer und Strand: 700 m

Swimmingpool: 21 m

Drei Parkplätze

Wärmedämmung der Fassade (10 cm)

PVC-Fenster mit elektrischen Rollläden

Fußbodenheizung in den Badezimmern

Klimaanlage in allen Räumen

Hochwertige Bodenbeläge und Fliesen

Moderne und hochwertige Bauweise

Diese Immobilie bietet eine hervorragende Gelegenheit für einen Familienurlaub, ein ruhiges Leben in Dalmatien oder als sichere Investition in ein modernes Haus in Meeresnähe.

Für weitere Informationen und eine Besichtigung dieser attraktiven Immobilie kontaktieren Sie uns bitte.

Pirovac ist ein charmantes Küstenstädtchen im Herzen Dalmatiens, nur 22 km von Šibenik entfernt. Es ist bekannt für seine ruhige Umgebung, gepflegte Strände und die Nähe zu den Nationalparks Kornati und Krka sowie zum Naturpark Vrana-See. Ein ideales Reiseziel für alle, die Natur, Komfort und modernen Lebensstil verbinden möchten.

Sehr geehrte Kunden, die Vermittlungsgebühren richten sich nach den Allgemeinen Geschäftsbedingungen:

www.dux-nekretnine.hr/opci-uvjeti-poslovanja

ID CODE: 25398

DUX Nekretnine
Mob: +385 91 480 8808
Tel: +385 51 518 174
E-mail: info@dux-nekretnine.hr
www.dux-nekretnine.hr
Merkmale
Art
Einfamilienhaus
Vertrag
Verkauf
Etage
1
Fläche
110 m² | gewerblich 260 m²
Zimmer
5
Schlafzimmer
3
Badezimmer
2
Balkon
Nein
Terrasse
Ja
Klimaanlage
Eigenständig, kalt / warm
Andere Merkmale
  • Pool
Oberflächendetail

Wohnung

Etage
1
Fläche
110,0 m²
Koeffizient
100%
Flächenart
Hauptsächlich
Verkaufsfläche
110,0 m²

Grundstück

Etage
Erdgeschoss
Fläche
150,0 m²
Koeffizient
100%
Flächenart
zusätzlich
Verkaufsfläche
150,0 m²
Preisinformationen
Preis
€ 320.000
Preis pro m²
1.231 €/m²
Energieeffizienz
  • Baujahr

    2024
  • Zustand

    Neu / Im Bau
  • Klimatisierung

    Eigenständig, kalt / warm
  • Energieausweis

    Befreit
Entdecken Sie jeden Winkel des Anwesens
+13
Zusätzliche Optionen

Inserenten kontaktieren

Oder