map icon

Bauland zur Verkauf

Opatija
€ 300.000
1.368 m²

Notiz

Anzeige aktualisiert am: 17.11.2025
Beschreibung

This description has been translated automatically and may not be accurate

Referenz: 25359

OPATIJA, IČIĆI - Grundstück für eine Villa mit Baugenehmigung 300m2 in Strandnähe und Opatija

OPATIJA, IČIĆI Grundstück für eine Villa mit einer Baugenehmigung von 300 m2 in der Nähe des Strandes und von Opatija.

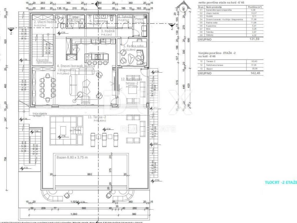
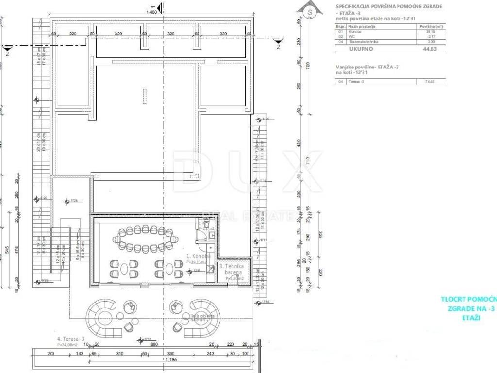
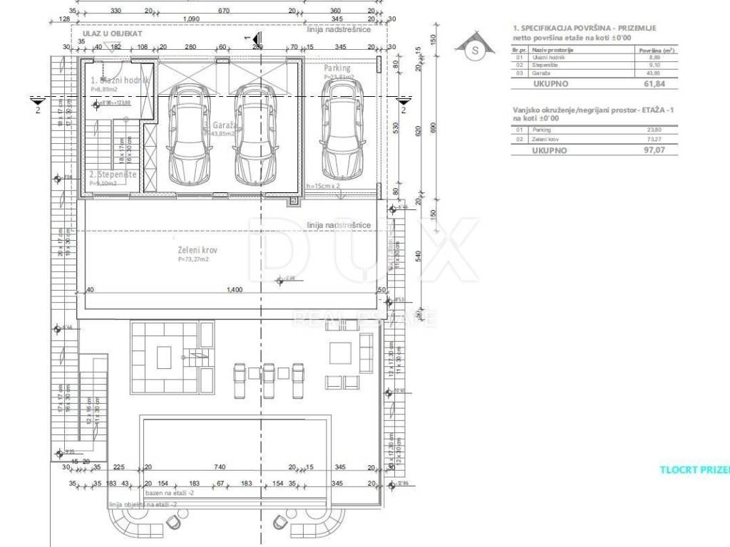
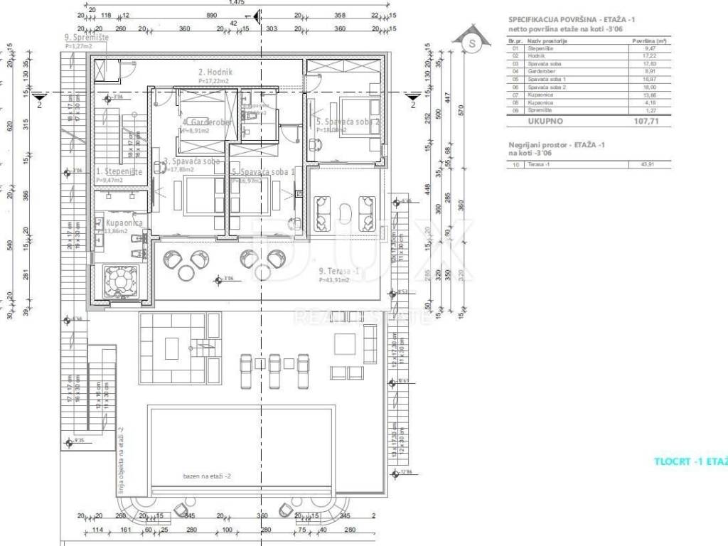
Im DUX-Angebot heben wir ein wunderschönes Grundstück in der Nähe von Opatija mit einer Baugenehmigung für eine Villa von 300 m2 hervor. Das Baugrundstück liegt leicht bergauf über dem Strand von Ičići, nur 3 Autominuten vom Strand entfernt. Das Baugrundstück ist 1386 m2 groß und es wurde eine Baugenehmigung für eine Villa auf 3 Etagen mit einer Nettowohnfläche von 287,75 m2 und einer Bruttofläche von 363,31 m2 erteilt. Der Eingang zur geplanten Villa erfolgt von oben, da das Gelände bergab verläuft, sodass sich der Eingang im Erdgeschoss befindet, weiter auf Etage -1 und Etage -2 + Keller. Das Haus besteht aus: Eingang Erdgeschoss, Flur 75 m2, Etage 1 3 Schlafzimmer, Badezimmer + Terrasse 135 m2, Etage 2 offenes Wohnzimmer 154 m2 + Pool und Umgebung 65 m2. Keller mit Taverne und Poolausstattung 45 m2. Die Lage des zukünftigen Hauses ist ideal für eine Villa, hochwertige und ruhige Umgebung, Luxushäuser in der Nachbarschaft, umgeben vom Grün von Učka und SCHÖNER DIREKTER BLICK AUF DAS MEER und die gesamte Kvarner-Bucht. Um das Land herum verläuft ein Grüngürtel. Der Fußweg bergab zum Meer dauert 10 Minuten, bergauf 15 Minuten. Die Fahrt zum Strand dauert 3 Minuten und das Zentrum von Opatija ist nur 8 Minuten mit dem Auto entfernt. Das Projekt wurde sehr exklusiv konzipiert, für eine hochwertige Wohnnutzung mit hochwertigen Materialien. Es gibt Strom, Wasser und eine ausgezeichnete Straße zum Land. Der Bau kann morgen beginnen! Sehr geehrte Kunden, die Agenturprovision wird gemäß den Allgemeinen Geschäftsbedingungen berechnet: www.dux-nekretnine.hr/opci-uvjeti-poslovanja

ID CODE: 25359

Marko Šutanovac
Agent s licencom
Mob: +385 91 189 8332
Tel: +385 91 480 8808
E-mail: marko@dux-nekretnine.hr
www.dux-opatija.com
Wenn Sie mehr wissen möchten, können Sie mit Marko Šutanovac. sprechen
Merkmale
Vertrag
Verkauf
Art
Bauland
Fläche
1.368 m²
Preisinformationen
Preis
€ 300.000
Preis pro m²
219 €/m²
Entdecken Sie jeden Winkel des Anwesens
+17
Zusätzliche Optionen

Inserenten kontaktieren

Oder