Einfamilienhaus 176 m², neu, Labin

€ 620.000
5+
176 m²
3

Notiz

Anzeige aktualisiert am: 04.02.2026
Beschreibung

This description has been translated automatically and may not be accurate

Referenz: 20754

ISTRIEN, LABIN - Modernes neues Gebäude mit Swimmingpool

ISTRIEN, LABIN - Modernes neues Gebäude mit Swimmingpool

An der Südostküste Istriens, an der Stelle, wo die grünen Hügel auf das Meer treffen, wo Natur und Erbe zusammenkommen, gibt es zwei Städte von ähnlicher Größe, aber mit unterschiedlichem, aber sich gegenseitig ergänzendem Charakter - Labin und Rabac.
Die malerische Stadt Labin erhebt sich auf einem 320 m hohen Hügel, nur fünf Kilometer von den weißen Kiesstränden in Rabac entfernt. Verflochten mit der reichen Geschichte und dem Bergbau, die diese Region prägten, ist Labin, das für kurze Zeit zur unabhängigen Republik erklärt wurde, heute eine faszinierende Stadt der Widersprüche; Alt und Neu, Geschichte und Gegenwart, Tourismus und Kunst.

In der Nähe der Stadt Labin steht ein moderner Neubau mit Swimmingpool zum Verkauf.
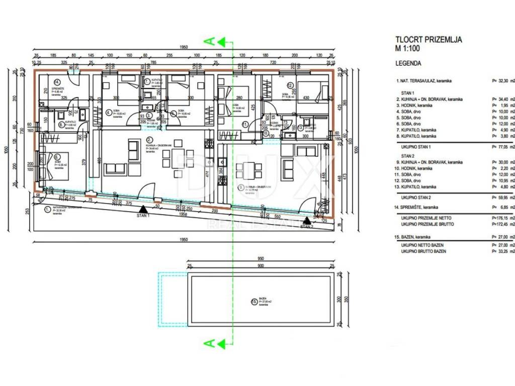
Das Haus zeichnet sich durch hochwertige Bauweise und zeitgemäßes, modernes Design aus. Die Wohnfläche ist klar abgegrenzt und maximal genutzt und beinhaltet zwei Wohneinheiten.
Die größere Wohneinheit besteht aus einem Wohnbereich mit Küche, Ess- und Wohnzimmer, der durch Glaswände mit dem Außenbereich verbunden ist, drei Schlafzimmern, zwei Badezimmern und einem Abstellraum.
Die kleinere Wohneinheit besteht aus einem Wohnbereich mit Küche, Ess- und Wohnzimmer, der durch Glaswände mit dem Außenbereich verbunden ist, zwei Schlafzimmern und einem Badezimmer.
Die Kühlung/Heizung des Hauses wird durch eine Fußbodenheizung über eine Wärmepumpe und Klimaanlagen sichergestellt.
Neben dem Haus, im eingezäunten und gepflegten Garten, befindet sich ein 27 m großer Swimmingpool mit gepflasterter Sonnenterrasse und Blick in die Natur sowie zwei Parkplätze.
Das Anwesen hat auch ein Drittel Miteigentum am Kinderspielplatz und zusätzlichen Parkplätzen für Gäste neben dem Haus.
Der angegebene Preis bezieht sich auf die schlüsselfertige Phase, außerdem besteht die Möglichkeit, eine voll ausgestattete und möblierte Immobilie zu erwerben.

Aufgrund der günstigen Lage ist diese Immobilie eine ideale Gelegenheit für das Familienleben oder als Investition für die Vermietung zu touristischen Zwecken.

Sehr geehrte Kunden, die Vermittlungsprovision wird gemäß den Allgemeinen Geschäftsbedingungen berechnet:
www.dux-nekretnine.hr/opci-uvjeti-poslovanja

ID CODE: 20754

Iva Zajc
Agent s licencom
Mob: +385 92 235 9472
Tel: +385 91 480 8808
E-mail: iva@dux-istra.com
www.dux-istra.com

Rene Nemarnik
Agent s licencom
Mob: +385 91 737 5328
Tel: +385 91 480 8808
E-mail: rene@dux-nekretnine.hr
www.dux-nekretnine.hr
Wenn Sie mehr wissen möchten, können Sie mit Iva Zajc. sprechen
Merkmale
Art
Einfamilienhaus
Vertrag
Verkauf
Etage
1
Fläche
176 m² | gewerblich 968 m²
Zimmer
5+
Schlafzimmer
5
Badezimmer
3
Balkon
Nein
Terrasse
Nein
Klimaanlage
Eigenständig, kalt / warm
Andere Merkmale
  • Pool
Oberflächendetail

Wohnung

Etage
1
Fläche
176,0 m²
Koeffizient
100%
Flächenart
Hauptsächlich
Verkaufsfläche
176,0 m²

Grundstück

Etage
Erdgeschoss
Fläche
792,0 m²
Koeffizient
100%
Flächenart
zusätzlich
Verkaufsfläche
792,0 m²
Preisinformationen
Preis
€ 620.000
Preis pro m²
640 €/m²
Energieeffizienz
  • Baujahr

    2023
  • Zustand

    Neu / Im Bau
  • Klimatisierung

    Eigenständig, kalt / warm
  • Energieausweis

    Befreit
Entdecken Sie jeden Winkel des Anwesens
+4
Zusätzliche Optionen

Inserenten kontaktieren

Oder