1/20


Einfamilienhaus 216 m², neu, Brtonigla
€ 1.200.000
5+
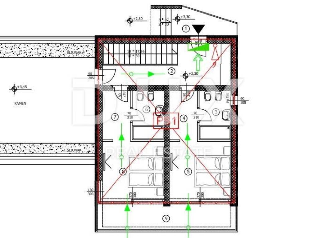
216 m²
3+
Ja
Balkon
Terrasse
Anzeige aktualisiert am: 26.03.2026
Beschreibung
Referenz: 20615
Haus Nova Vas, Brtonigla, 216,35m2
ID CODE: 20615
DUX Pula
Mob: +385 91 480 8808
Tel: +385 51 518 174
E-mail: info@dux-istra.com
www.dux-istra.com
Merkmale
- Art
- Einfamilienhaus
- Vertrag
- Verkauf
- Etage
- 1
- Aufzug
- Ja
- Fläche
- 216 m² | gewerblich 1.240 m²
- Zimmer
- 5+
- Schlafzimmer
- 4
- Badezimmer
- 3+
- Balkon
- Ja
- Terrasse
- Ja
Andere Merkmale
Oberflächendetail
Wohnung
- Etage
- 1
- Fläche
- 216,0 m²
- Koeffizient
- 100%
- Flächenart
- Hauptsächlich
- Verkaufsfläche
- 216,0 m²
Grundstück
- Etage
- Erdgeschoss
- Fläche
- 1.024,0 m²
- Koeffizient
- 100%
- Flächenart
- zusätzlich
- Verkaufsfläche
- 1.024,0 m²
Preisinformationen
- Preis
- € 1.200.000
- Preis pro m²
- 968 €/m²
Energieeffizienz
Baujahr
2023Zustand
Neu / Im BauEnergieausweis
Befreit
Entdecken Sie jeden Winkel des Anwesens
Zusätzliche Optionen