map icon

Dreizimmerwohnung 99 m², Punat

Punat
€ 580.000
3
99 m²
2
1
Ja
Balkon
Terrasse
Keller

Notiz

Anzeige aktualisiert am: 17.11.2025
Beschreibung

This description has been translated automatically and may not be accurate

Referenz: a-840

NEUE WOHNUNG AUF ZWEI STOCK MIT MEERBLICK

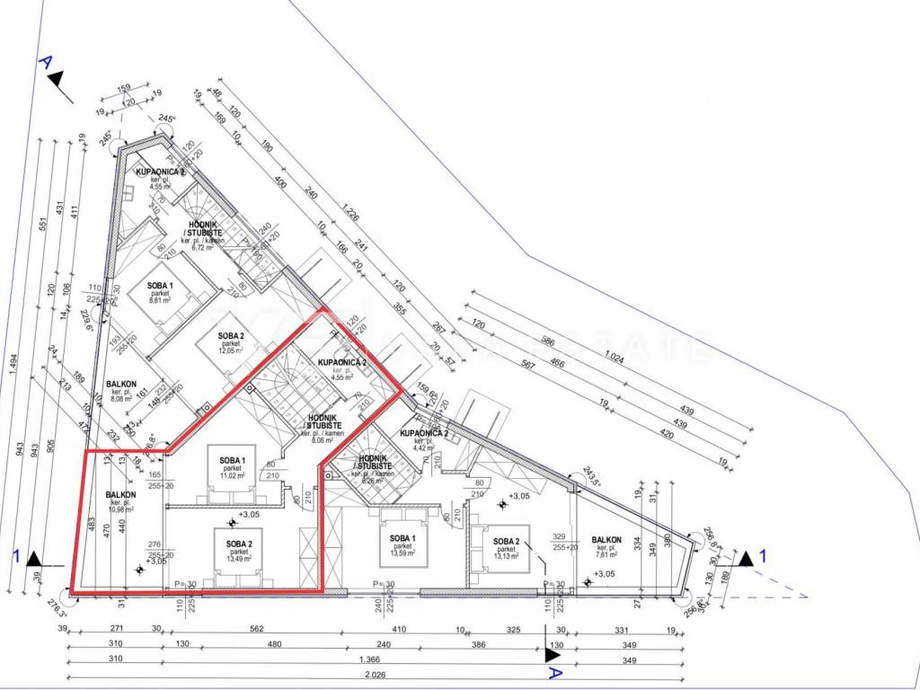
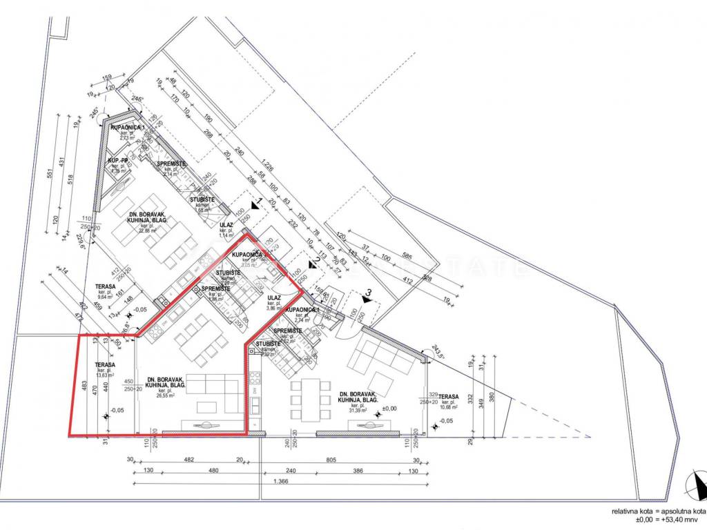
Immobilien Insel Krk, Punat - zweistöckige Wohnung zum Verkauf mit einer Gesamtfläche von 99 m2 in ausgezeichneter Lage, 600 m vom Meer und Strand entfernt. Das Erdgeschoss besteht aus einer Eingangshalle, einem Badezimmer, einem Abstellraum und einem Raum, der das Wohnzimmer, die Küche und das Esszimmer vereint und Zugang zu einer überdachten Terrasse und einem wunderschön angelegten Garten von 50 m2 hat. Eine Innentreppe führt in den ersten Stock, wo sich zwei Schlafzimmer mit Zugang zu einer gemeinsamen Terrasse mit Meerblick und ein Badezimmer befinden. Es hat einen Parkplatz. Klimaanlage in allen Räumen, ALU-Tischlerei, Fußbodenheizung, hochwertige Bodenbeläge sowie hochwertige Badmöbel und Sanitärkeramik sind nur einige Merkmale der Bau- und Ausstattungsqualität dieser modernen Immobilie. Die Entfernung zum Meer und schönen Stränden beträgt 700 m. Das Objekt befindet sich derzeit in der ersten Bauphase, die geplante Bezugsfertigkeit ist Ende 2024.
Die Agentur Vala Estate Malinska stellt Ihnen eine sichere und transparente Eigentumsübertragung und alle erforderlichen Unterlagen zur Verfügung.

ID CODE: a-840

VALA ESTATE d.o.o.
Mob: +385 99 444 0550
Tel: +385 51 568 917
E-mail: info@vala-estate.com
www.vala-estate.com
Merkmale
Art
Wohnung
Vertrag
Verkauf
Etage
1
Aufzug
Ja
Fläche
99 m² | gewerblich 149 m²
Zimmer
3
Schlafzimmer
2
Badezimmer
2
Balkon
Ja
Terrasse
Ja
Andere Merkmale
  • Gepanzerte Tür
Oberflächendetail

Wohnung

Etage
1
Fläche
99,0 m²
Koeffizient
100%
Flächenart
Hauptsächlich
Verkaufsfläche
99,0 m²

Grundstück

Etage
Erdgeschoss
Fläche
50,0 m²
Koeffizient
100%
Flächenart
zusätzlich
Verkaufsfläche
50,0 m²
Preisinformationen
Preis
€ 580.000
Preis pro m²
3.893 €/m²
Energieeffizienz
  • Baujahr

    2024
  • Energieausweis

    Befreit
Entdecken Sie jeden Winkel des Anwesens
+6
Zusätzliche Optionen

Inserenten kontaktieren

Oder