1/8


Vierzimmerwohnung neu, Erdgeschoss, Vir
Vir€ 260.000
Anzeige aktualisiert am: 17.11.2025
Beschreibung
Referenz: 2153
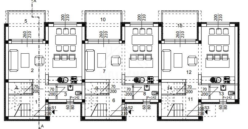
Apartment Vir, 85m2
ID CODE: 2153
Stella Mar
Mob: +385 91 320 4955
E-mail: info@stellamar.hr
www.stellamar.hr
Merkmale
- Art
- Wohnung
- Vertrag
- Verkauf
- Etage
- Erdgeschoss
- Fläche
- 85 m²
- Zimmer
- 4
- Schlafzimmer
- 3
- Badezimmer
- 1
- Balkon
- Nein
- Terrasse
- Ja
- Klimaanlage
- Eigenständig, kalt / warm
Preisinformationen
- Preis
- € 260.000
- Preis pro m²
- 3.059 €/m²
Energieeffizienz
Baujahr
2024Zustand
Neu / Im BauKlimatisierung
Eigenständig, kalt / warmEnergieausweis
Befreit
Entdecken Sie jeden Winkel des Anwesens
Zusätzliche Optionen