1/25


Dreizimmerwohnung zweite Etage, Mimara, Zagreb
€ 857.000
Anzeige aktualisiert am: 08.04.2026
Beschreibung
Referenz: ZG85208
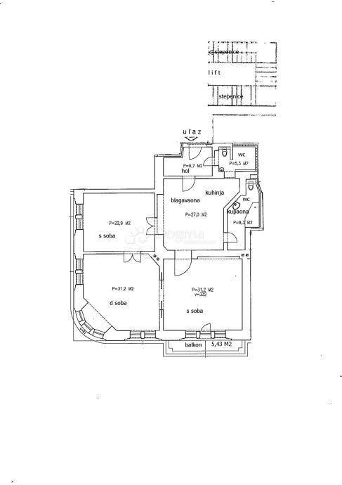
Wohnung Botinec, Novi Zagreb - Zapad, 130m2
ID CODE: ZG85208
Amina Krčmar
Asistent u posredovanju
Mob: 098/180-8006
Tel: 01/647-3011
E-mail: amina.krcmar@dogma-nekretnine.com
www.dogma-zagreb.com
Lidija Matijević
Asistent u posredovanju
Mob: 095/372-1999
Tel: 01/647-3011
E-mail: lidija.matijevic@dogma-nekretnine.com
www.dogma-zagreb.com
Merkmale
- Art
- Wohnung
- Vertrag
- Verkauf
- Etage
- 2 etage
- Aufzug
- Ja
- Fläche
- 130 m²
- Zimmer
- 3
- Schlafzimmer
- 3
- Badezimmer
- 1
- Balkon
- Ja
- Terrasse
- Nein
- Klimaanlage
- Eigenständig, kalt / warm
Preisinformationen
- Preis
- € 857.000
- Preis pro m²
- 6.592 €/m²
Energieeffizienz
Entdecken Sie jeden Winkel des Anwesens
Zusätzliche Optionen