Vierzimmerwohnung neu, Erdgeschoss, Vrsi

€ 380.038
4
100 m²
2
1
Ja
Balkon
Terrasse

Notiz

Anzeige aktualisiert am: 06.04.2026
Beschreibung

This description has been translated automatically and may not be accurate

Referenz: DA100066151

Neubau Vrsi - Wohnung mit Pool und Garten, 300 m vom Meer entfernt

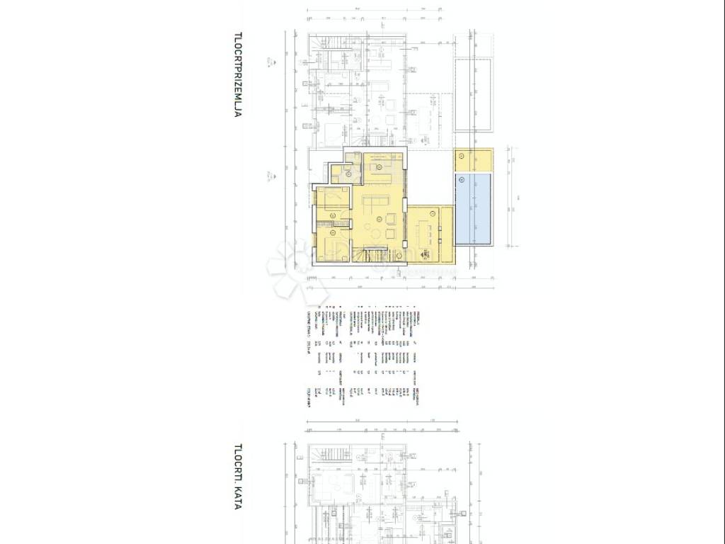
2) BESCHREIBUNG In Vrsi bei Zadar steht eine exklusive Wohnung C in einem neuen hochwertigen Gebäude zum Verkauf, nur 300 Meter vom Meer entfernt. Die Wohnung befindet sich im Erdgeschoss eines modernen Doppelhauses und verfügt über einen privaten Garten und einen beheizten Swimmingpool die perfekte Kombination aus Komfort und Luxus. Die Wohnung hat eine Gesamtfläche von 100,01 m und besteht aus drei Schlafzimmern im Erdgeschoss und einem weiteren Zimmer im ersten Stock, einem geräumigen Wohnzimmer mit Küche und Esszimmer, zwei Badezimmern und einer überdachten Terrasse mit Zugang zum Pool. Offene Räume und große Glaswände sorgen für viel natürliches Licht und Harmonie zwischen Innen- und Außenbereich. Das Gebäude wurde nach dem Energiestandard A+ gebaut, mit dreischichtigen ALU-Tischlereiarbeiten, IZO-Verglasung, einer Wärmepumpe und erstklassiger Wärmedämmung. Die Lage bietet Ruhe und Privatsphäre, mit schneller Anbindung an Zadar und der Nähe zu Stränden, Geschäften und Restaurants. Diese Immobilie stellt eine ausgezeichnete Gelegenheit für das Familienleben oder eine Investition mit hoher Rendite in der Touristensaison dar.

ID CODE: DA100066151

Mateo Čirjak
Asistent u posredovanju
Mob: 095/810-4649
Tel: 023/551-400
E-mail: mateo.cirjak@dogma-nekretnine.com
www.dogma-nekretnine.com
Wenn Sie mehr wissen möchten, können Sie mit Mateo Čirjak. sprechen
Merkmale
Art
Wohnung
Vertrag
Verkauf
Etage
1
Aufzug
Ja
Fläche
100 m² | gewerblich 238 m²
Zimmer
4
Schlafzimmer
3
Badezimmer
2
Balkon
Ja
Terrasse
Ja
Oberflächendetail

Wohnung

Etage
1
Fläche
100,0 m²
Koeffizient
100%
Flächenart
Hauptsächlich
Verkaufsfläche
100,0 m²

Grundstück

Etage
Erdgeschoss
Fläche
138,0 m²
Koeffizient
100%
Flächenart
zusätzlich
Verkaufsfläche
138,0 m²
Preisinformationen
Preis
€ 380.038
Preis pro m²
1.597 €/m²
Energieeffizienz

Energieverbrauch

A+

Entdecken Sie jeden Winkel des Anwesens
+4
Zusätzliche Optionen

Inserenten kontaktieren

Oder