map icon

Bauland zur Verkauf

ParenzoLuka
€ 120.000
776 m²

Notiz

Anzeige aktualisiert am: 18.11.2025
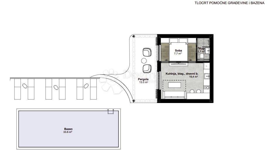
Beschreibung

This description has been translated automatically and may not be accurate

Referenz: IS1517479

Bauland Poreč, 1.033m2

Zum Verkauf steht ein wunderschönes Baugrundstück mit 776 m Fläche, gelegen in ruhiger Lage am Rand einer kleinen Siedlung ideal für alle, die Privatsphäre und Ruhe suchen. Das Grundstück ist eben, regelmäßig geschnitten und sofort baubereit die Baugenehmigung wurde bereits erteilt, und alle Anschlüsse (Strom, Wasser, Abwasser, Internet) sind vor Ort vorhanden.

Das Grundstück befindet sich im Eigentum einer Privatperson, ist lastenfrei und ermöglicht einen schnellen, sicheren Kauf. Der sofortige Baubeginn ist möglich, was die Attraktivität zusätzlich erhöht.

Ein besonderer Vorteil: Es besteht die Möglichkeit zur Zusammenarbeit mit dem Investor, der den Bau nach Vereinbarung übernehmen kann. Das Projekt kann nach den Wünschen des Käufers angepasst werden ideal für alle, die sich ihr Traumhaus ohne Bau-Stress verwirklichen möchten.

Eine ausgezeichnete Gelegenheit für den Bau einer Familienvilla, eines Ferienhauses oder einer Investitionsimmobilie.

ID CODE: IS1517479

Karlo Šestan
Asistent u posredovanju
Mob: 091/361-1922
Tel: 052 770 811
E-mail: karlo.sestan@dogma-nekretnine.com
www.dogma-istra.com
Wenn Sie mehr wissen möchten, können Sie mit Karlo Šestan. sprechen
Merkmale
Vertrag
Verkauf
Art
Bauland
Fläche
776 m²
Andere Merkmale
  • Kanalanschluss
Preisinformationen
Preis
€ 120.000
Preis pro m²
155 €/m²
Entdecken Sie jeden Winkel des Anwesens
+11
Zusätzliche Optionen

Inserenten kontaktieren

Oder