1/7


Dreizimmerwohnung neu, zweite Etage, Povljana
Povljana€ 445.000
Anzeige aktualisiert am: 18.11.2025
Beschreibung
Referenz: DA100064067
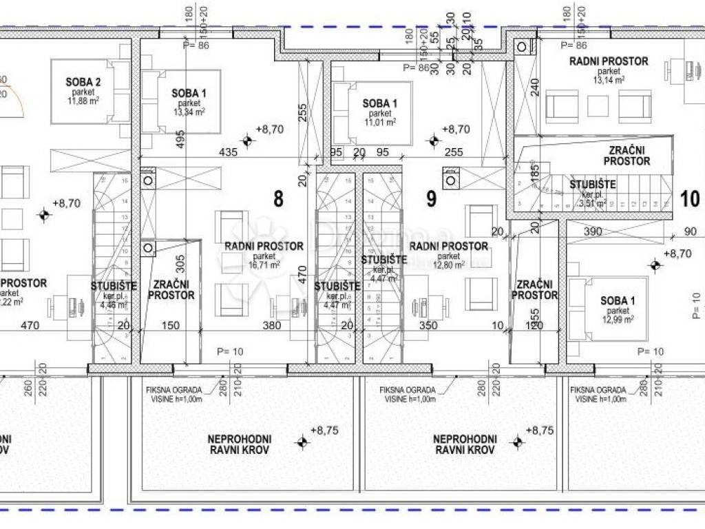
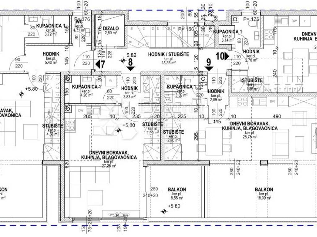
Wohnung Povljana, 73,11m2
ID CODE: DA100064067
Vlatko Šaran
Agent s licencom
Mob: 098/429-832
Tel: 023/551-400
E-mail: vlatko.saran@dogma-nekretnine.com
www.dogma-nekretnine.com
Merkmale
- Art
- Wohnung
- Vertrag
- Verkauf
- Etage
- 2 etage
- Aufzug
- Ja
- Fläche
- 165 m²
- Zimmer
- 3
- Schlafzimmer
- 2
- Balkon
- Nein
- Terrasse
- Ja
- Garage, parkplätze (auto)
- 1 in lager/garage
- Klimaanlage
- Eigenständig, kalt / warm
Preisinformationen
- Preis
- € 445.000
- Preis pro m²
- 2.697 €/m²
Energieeffizienz
Baujahr
2024Zustand
Neu / Im BauKlimatisierung
Eigenständig, kalt / warmEnergieausweis
Befreit
Entdecken Sie jeden Winkel des Anwesens
Zusätzliche Optionen