Dreizimmerwohnung neu, Erdgeschoss, Centar, Opatija

€ 668.000
3
77 m²
2
0
Ja
Balkon

Notiz

Anzeige aktualisiert am: 19.11.2025
Beschreibung

This description has been translated automatically and may not be accurate

Referenz: ID12116

Wohnung Opatija, 156,85m2

Opatija, eine elegante Touristendestination, ist das Zentrum der Riviera mit der längsten Tradition im kroatischen Tourismus. Oft gewählt wegen ihrer luxuriösen Hotels, Strandpromenaden und zahlreichen erstklassigen Restaurants mit fantastischer Aussicht, hebt sich Opatija als bevorzugtes Reiseziel hervor.

Im Herzen dieses touristischen Zentrums präsentieren wir eine atemberaubende Neuentwicklung, die mit ihrer Architektur und Ausstattung Aufmerksamkeit erregt. Es handelt sich um ein hochwertiges Gebäude mit Aufzug, Garagen und einem eigenen Innenhof.

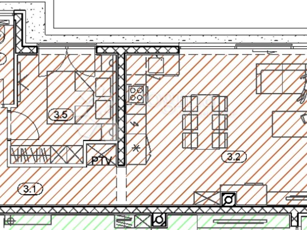
Die Wohnung befindet sich im Erdgeschoss, markiert in Braun auf dem Grundriss, und besteht aus:

Flur, Wohnzimmer / Küche / Essbereich im offenen Raum, zwei Schlafzimmern, Badezimmer, überdachtem Balkon, mit einer Gesamtfläche von 77,09 m2.
Die Wohnung umfasst auch zwei Parkplätze in der Garage.

AUSSTATTUNG:
Wärmepumpen, Fußbodenheizung, Lüftungssystem mit Ventilator.
Mineralwolle-Isolierung 10cm.
Aluminiumfenster.
Die außergewöhnliche Bauqualität hebt sich als deutlicher Vorteil hervor!

Der Preis enthält 25% Mehrwertsteuer, und der Käufer ist von der Zahlung der Grunderwerbsteuer befreit. Im Falle eines Kaufs über ein in Kroatien registriertes Unternehmen ist nach dem Verkauf eine vollständige Mehrwertsteuererstattung möglich.

Diese Neuentwicklung richtet sich an diejenigen, die die Nähe zum Meer und zu schönen Reisezielen lieben. Ihre Kombination aus modernem Design, hochwertiger Ausstattung und spektakulärer Umgebung macht sie zur idealen Wahl für einen entspannten und luxuriösen Urlaub im Herzen von Opatija.

Für weitere Informationen oder zur Vereinbarung einer Besichtigung kontaktieren Sie bitte +385 95 88 09 208 - Katarina Vlašić.
E-Mail: katarina.vlasic@dogma-nekretnine.com

Agentur-ID-Code: 1509064

ID CODE: ID12116

Katarina Vlašić
Agent s licencom
Mob: 095/880-9208
Tel: 052 645 444
E-mail: katarina.vlasic@dogma-nekretnine.com
www.dogma-istra.com
Wenn Sie mehr wissen möchten, können Sie mit Katarina Vlašić. sprechen
Merkmale
Art
Wohnung
Vertrag
Verkauf
Etage
Erdgeschoss
Aufzug
Ja
Fläche
77 m²
Zimmer
3
Schlafzimmer
2
Badezimmer
2
Balkon
Ja
Terrasse
Nein
Garage, parkplätze (auto)
1 in lager/garage
Klimaanlage
Eigenständig, kalt / warm
Preisinformationen
Preis
€ 668.000
Preis pro m²
8.675 €/m²
Energieeffizienz
  • Baujahr

    2024
  • Zustand

    Neu / Im Bau
  • Klimatisierung

    Eigenständig, kalt / warm
  • Energieausweis

    Befreit
Entdecken Sie jeden Winkel des Anwesens
+6
Zusätzliche Optionen

Inserenten kontaktieren

Oder