Einfamilienhaus 430 m², Benkovac

€ 1.099.000
5+
430 m²
3+
Ja
Balkon
Terrasse

Notiz

Anzeige aktualisiert am: 19.11.2025
Beschreibung

This description has been translated automatically and may not be accurate

Referenz: DA100061680

Haus Tinj, Benkovac, 430m2

VILLA MIT POOL IM BAU IN TINJ, NUR 11 KILOMETER VON BIOGRAD NA MORU ENTFERNT

Eine Oase der Ruhe in der Nähe des touristischen Biograd na Moru!
Wir präsentieren Ihnen eine einzigartige Gelegenheit - eine wunderschöne Villa mit Pool im Bau in dem kleinen Ort Tinj, nur 11 Kilometer von Biograd na Moru entfernt.

Genießen Sie die Oase der Ruhe in Tinj. Diese wunderschöne Ferienvilla befindet sich auf einem Grundstück von 800 m2 und bietet Ihnen Privatsphäre und Komfort.

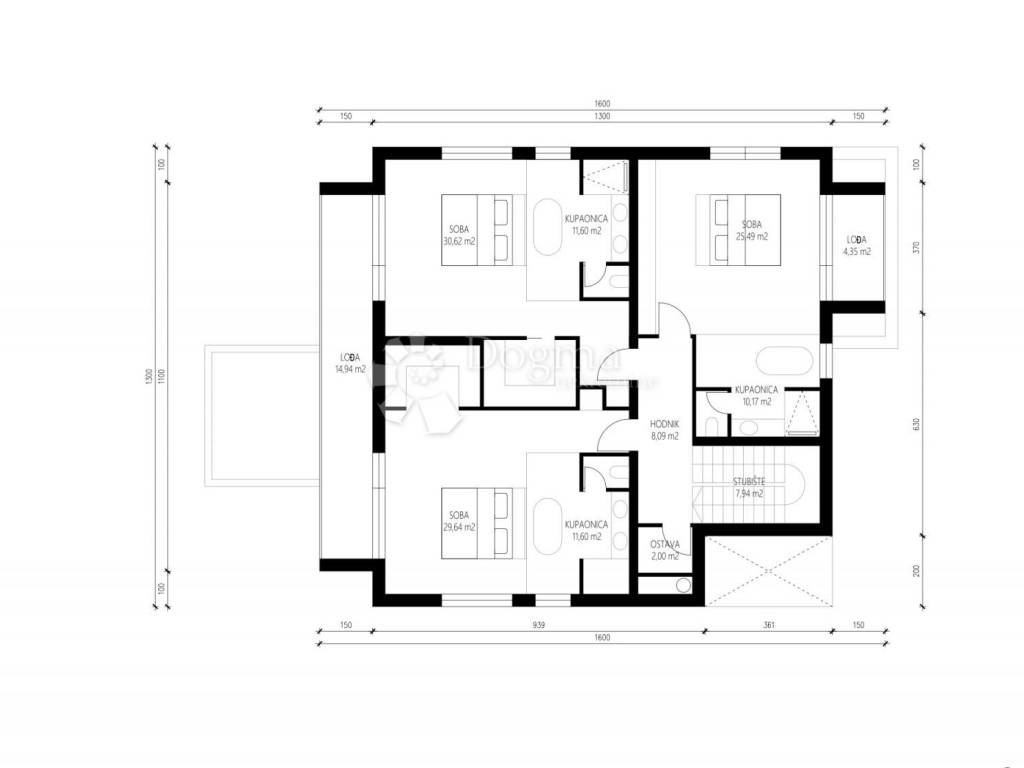
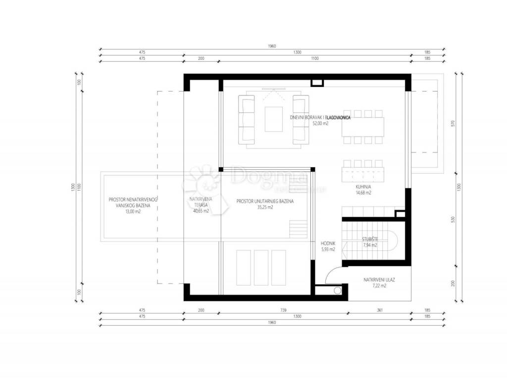
Die Villa besteht aus einem Keller, Erdgeschoss und erstem Stock. Im Keller befinden sich ein Weinkeller mit Küche, Fitnessraum, Sauna, Waschküche, Poolmaschinenraum, Abstellraum und ein Badezimmer. Eine Innentreppe führt zum Erdgeschoss, wo sich die Küche mit Essbereich, das Wohnzimmer mit Zugang zur Terrasse und der Innenpool befinden. Im ersten Stock befinden sich drei geräumige Schlafzimmer, jedes mit eigenem Badezimmer und Zugang zu einem Balkon. Zwei Zimmer verfügen über begehbare Kleiderschränke.

Genießen Sie die Schönheit der Natur in einer authentischen dalmatinischen Umgebung, umgeben von Olivenhainen. Die großzügige Terrasse und der Pool schaffen eine idyllische Umgebung zum Genießen im Freien.
Diese Villa bietet die perfekte Kombination aus der ruhigen Umgebung eines kleinen Ortes und der schnellen Erreichbarkeit der touristischen Stadt Biograd na Moru, die Ihnen lange Strände, Spaziergänge durch Kiefernwälder und alle Annehmlichkeiten dieses beliebten Reiseziels bietet.

Das Haus wird im Rohbau ohne Möbel und Sanitäreinrichtungen verkauft, sodass Sie es nach Ihren Wünschen und Bedürfnissen gestalten können. Der geplante Einzug ist für 12/2024 vorgesehen.

Tinj ist ein kleines Dorf, das 11 Kilometer oder etwa zehn Minuten Fahrt von der Stadt Biograd na Moru entfernt liegt. Es ist gut an den Verkehr angebunden, der Flughafen Zadar befindet sich in einer Entfernung von 19 km und die Stadt Zadar ist 30 km entfernt.

Genießen Sie Luxus und Privatsphäre - reservieren Sie Ihr Zuhause in einer Oase der Ruhe nahe dem Meer!
Kontaktieren Sie mich für weitere Informationen und zur Vereinbarung einer Besichtigung. Ihre neue Adresse für luxuriöses Wohnen wartet auf Sie!

Kontakt:
Vedrana Bašić: +385919077396
vedrana.basic@dogma-nekretnine.com

ID CODE: DA100061680

Vedrana Bašić
Asistent u posredovanju
Mob: 091/907-7396
Tel: 023/551-400
E-mail: vedrana.basic@dogma-nekretnine.com
www.dogma-nekretnine.com
Wenn Sie mehr wissen möchten, können Sie mit Vedrana Bašić . sprechen
Merkmale
Art
Einfamilienhaus
Vertrag
Verkauf
Etage
1
Aufzug
Ja
Fläche
430 m² | gewerblich 1.030 m²
Zimmer
5+
Schlafzimmer
3
Badezimmer
3+
Balkon
Ja
Terrasse
Ja
Andere Merkmale
  • Pool
Oberflächendetail

Wohnung

Etage
1
Fläche
430,0 m²
Koeffizient
100%
Flächenart
Hauptsächlich
Verkaufsfläche
430,0 m²

Grundstück

Etage
Erdgeschoss
Fläche
600,0 m²
Koeffizient
100%
Flächenart
zusätzlich
Verkaufsfläche
600,0 m²
Preisinformationen
Preis
€ 1.099.000
Preis pro m²
1.067 €/m²
Energieeffizienz
  • Baujahr

    2024
  • Energieausweis

    Befreit
Entdecken Sie jeden Winkel des Anwesens
+14
Zusätzliche Optionen

Inserenten kontaktieren

Oder