Einfamilienhaus Rtić, Rogoznica

€ 1.250.000
5+
366 m²
Balkon
Terrasse

Notiz

Anzeige aktualisiert am: 03.03.2026
Beschreibung

Referenz: EUROVILLA-492452

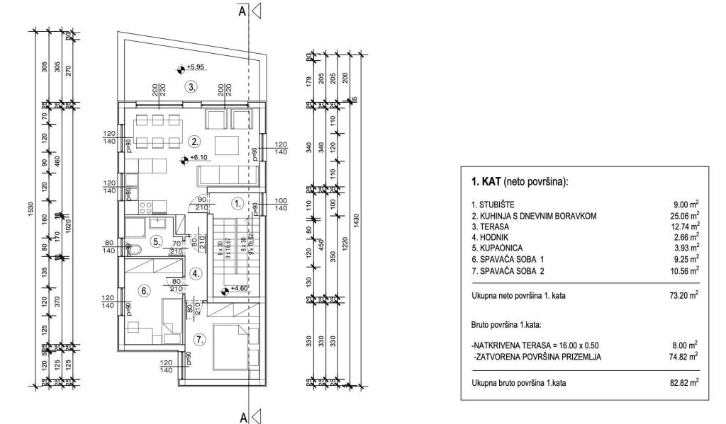
Rogoznica, Zečevo, Kuća s 4 stana i podrumom, površine 366,81 m². Prodaje se potpuno namještena i opremljena, te idealna za stanovanje, odmor ili turistički najam. Uz kuću se nalaze i 3 parkirna mjesta.Izgrađena na parceli od 207 m²., sastoji se od podruma u kojem je uređen jedan mali apartman, te su uz njega u podrumu još i 4 ostave. Unutarnjim stepenicama penje se u prizemlje i katove gdje se nalaze 4 identična stana, a svaki se sastoji od dnevnog boravaka s kuhinjom i blagovaonicom, dvije spavaće sobe i kupaonice. Iz boravka se izlazi na terasu s pogledom na more.Kuća je građena po vrhunskim standardima, te je jako lijepo uređena. Nalazi se na mirnom mjestu samo 90 metara od mora i plaže.Sve ostale informacije na upit.... Više na eurovilla.hr, ID: 492452
Wenn Sie mehr wissen möchten, können Sie mit Domagoj Matić. sprechen
Merkmale
Art
Einfamilienhaus
Vertrag
Verkauf
Etage
Erdgeschoss
Fläche
366 m²
Zimmer
5+
Schlafzimmer
8
Balkon
Ja
Terrasse
Ja
Oberflächendetail

Wohnung

Etage
Erdgeschoss
Fläche
366,8 m²
Koeffizient
100%
Flächenart
Hauptsächlich
Verkaufsfläche
366,8 m²
Preisinformationen
Preis
€ 1.250.000
Preis pro m²
3.415 €/m²
Energieeffizienz
  • Zustand

    Neu / Im Bau
  • Energieausweis

    Befreit
Grundriss
Entdecken Sie jeden Winkel des Anwesens
+25
Zusätzliche Optionen

Inserenten kontaktieren

Oder