Einfamilienhaus 146 m², neu, Centar, Luka, Finida, Umag

€ 430.000
4
146 m²
3+
Nein

Notiz

Anzeige aktualisiert am: 23.12.2025
Beschreibung

This description has been translated automatically and may not be accurate

Referenz: 25

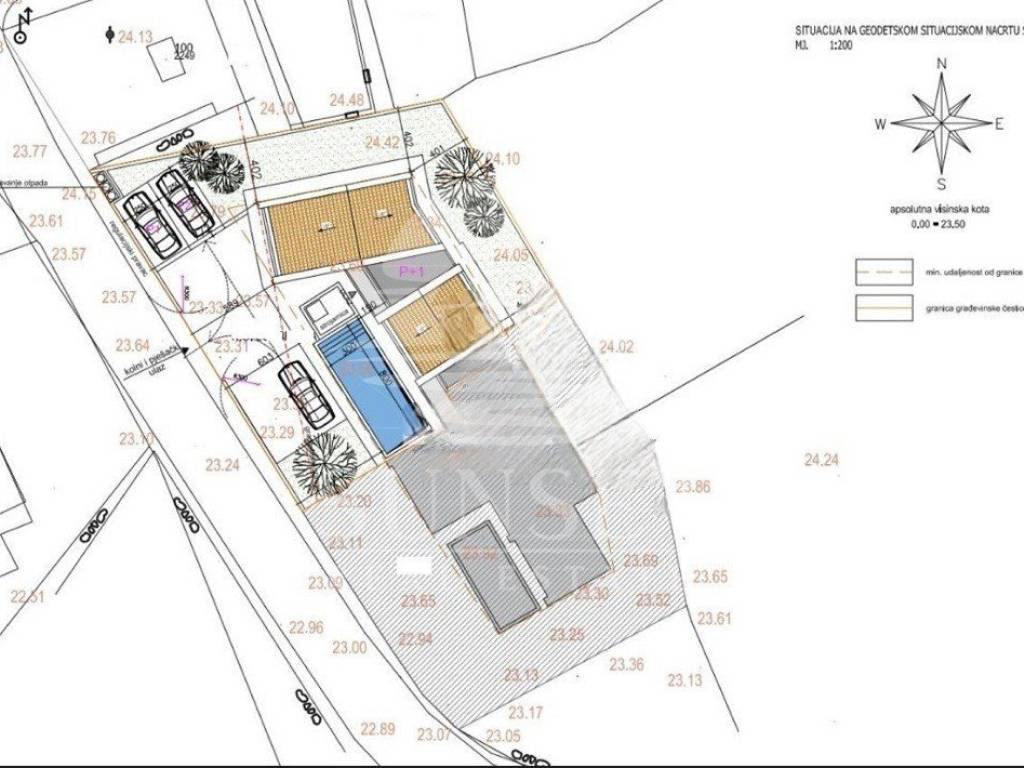
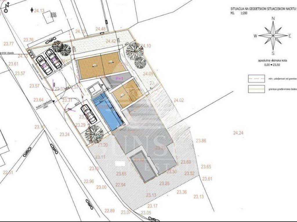
Dopplehaushälfte mit Meerblick und Pool in der Nähe von Umag

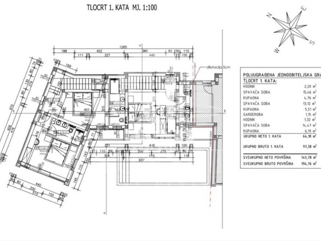
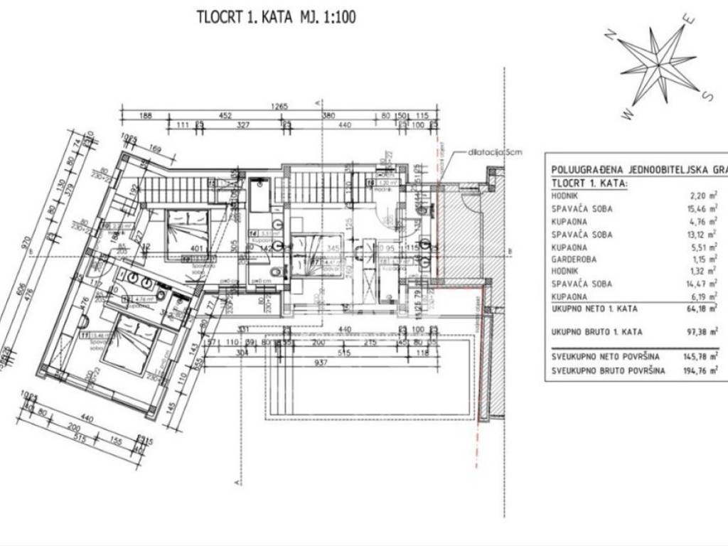
Zum Verkauf steht eine charmante Doppelhaushälfte, die sich über zwei Etagen erstreckt und einen Pool sowie einen schönen Meerblick in der Nähe von Umag bietet. Die Netto-Nutzfläche des Hauses beträgt 146 m. Im Erdgeschoss befinden sich ein Wohnzimmer, eine Küche und ein Essbereich mit Zugang zu einer Terrasse, sowie ein WC, ein Abstellraum und eine Sauna. Im Obergeschoss befinden sich drei Schlafzimmer, jedes mit eigenem Badezimmer, sowie ein Ankleidezimmer. Das Hauptschlafzimmer hat Zugang zu einer überdachten Terrasse mit atemberaubendem Blick auf das Meer und die umliegende Natur.

Der Garten umfasst etwa 340 m und enthält einen 24 m großen Swimmingpool mit Liegebereich sowie drei Parkplätze.

Das Haus wird mit hochwertigen Materialien gebaut, einschließlich Fußbodenheizung, die durch Gleichstrom (12V) betrieben wird, und Kühlung über Klimaanlagen. Die PVC-Anthrazitfenster sind mit dreifach verglasten Fenstern, Insektenschutzgittern und elektrischen Rollläden ausgestattet. In allen Räumen werden Fliesen verlegt, und die Fassade wird energieeffizient (10 cm Styropor) und mit Stein verkleidet, was minimale Heizkosten gewährleistet.

Der geplante Fertigstellungstermin für den Bau ist im Frühling 2025.

Dieses Haus befindet sich in einer attraktiven Lage, nur 700 m vom Meer und einem schön gestalteten Strand entfernt.
Merkmale
Art
Einfamilienhaus
Vertrag
Verkauf
Etage
1
Stockwerke im Gebäude
2
Aufzug
Nein
Fläche
146 m² | gewerblich 562 m²
Zimmer
4
Schlafzimmer
3
Badezimmer
3+
Möbliert
Nein
Garage, parkplätze (auto)
1 parkplatz(e)
Heizung
Unabhängige heizung, fußbodenheizung
Klimaanlage
Kalt / warm
Andere Merkmale
  • Pool
  • Gepanzerte Tür
Oberflächendetail

Wohnung

Etage
1
Fläche
146,0 m²
Koeffizient
100%
Flächenart
Hauptsächlich
Verkaufsfläche
146,0 m²

Grundstück

Etage
Erdgeschoss
Fläche
416,0 m²
Koeffizient
100%
Flächenart
zusätzlich
Verkaufsfläche
416,0 m²
Preisinformationen
Preis
€ 430.000
Preis pro m²
765 €/m²
Energieeffizienz
  • Baujahr

    2024
  • Zustand

    Neu / Im Bau
  • Heizung

    Unabhängige heizung, fußbodenheizung
  • Klimatisierung

    Kalt / warm
Entdecken Sie jeden Winkel des Anwesens
+15
Zusätzliche Optionen

Inserenten kontaktieren

Oder