Einfamilienhaus 122 m², neu, Centar - Gulići, Parenzo

€ 505.000
4
122 m²
3+
Nein
Keller

Notiz

Anzeige aktualisiert am: 23.12.2025
Beschreibung

This description has been translated automatically and may not be accurate

Referenz: 1818

K182
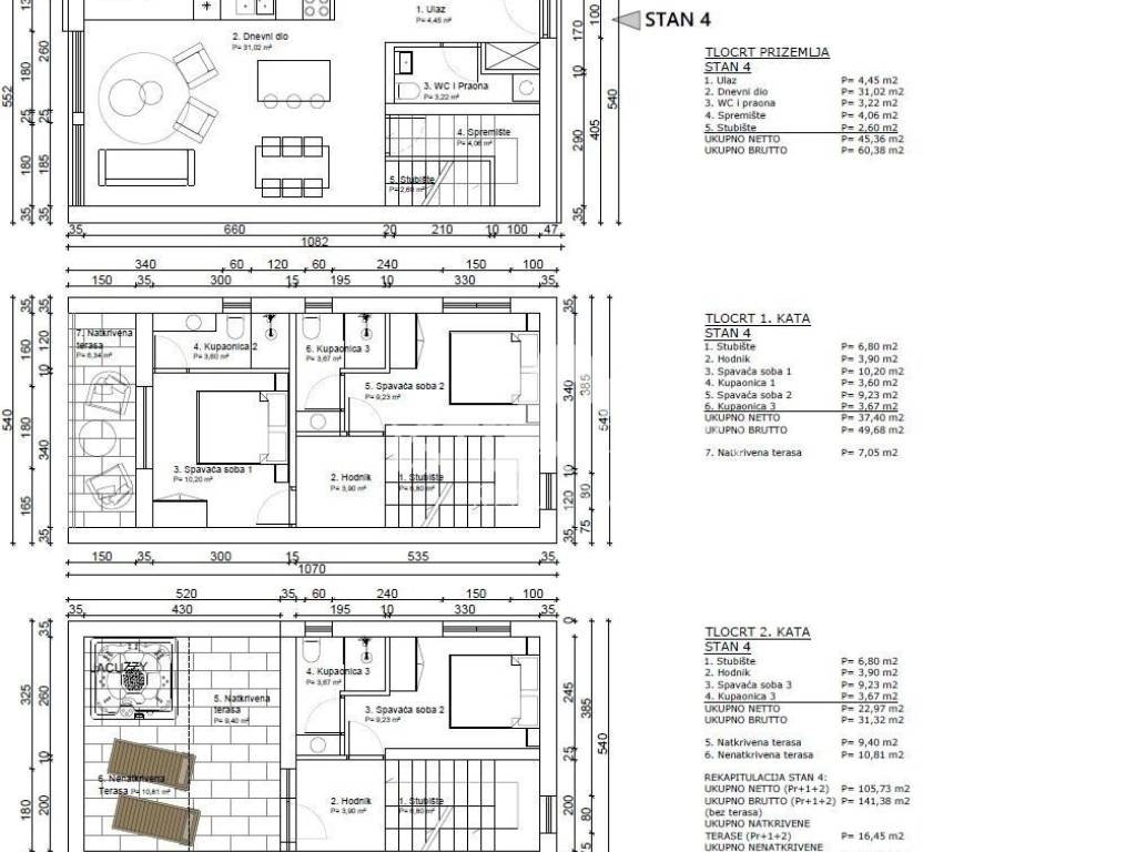
Das Haus erstreckt sich über drei Etagen und verfügt über eine Gesamtnettofläche von 122,18m2 mit überdachten Terrassen.
Im Erdgeschoss befinden sich Esszimmer, Küche und Wohnzimmer nach dem Open-Space-Konzept mit Zugang zur Terrasse und Hof 30 m2, Gäste-WC mit Waschküche, Abstellraum.
Im 1. Stock befinden sich zwei Schlafzimmer mit jeweils eigenem Bad und ein Schlafzimmer hat Zugang zu einer überdachten Terrasse von 6,34 m2.
Im 2. Stock gibt es ein Hauptschlafzimmer mit eigenem Bad und Zugang zu einer großzügigen Terrasse mit Platz für einen Whirlpool und wunderschönem Blick auf das Meer.
Das Haus verfügt über einen Parkplatz.
Alle Etagen verfügen über elektrische Fußbodenheizung und Inverter-Klimaanlagen.
Die geplante Fertigstellung der Bauarbeiten ist Ende 2024.
Dieses Haus ist eine ideale Lösung für die Wohnungsfrage oder als Investition zur touristischen Vermietung.
Alle notwendigen Einrichtungen befinden sich in der Nähe der Wohnung, Schule, Kindergarten, Geschäfte, Post, Apotheke, Krankenhaus...
Beim Kauf dieser Immobilie entfällt für den Käufer die Grundsteuer von 3 %.
Merkmale
Art
Einfamilienhaus
Vertrag
Verkauf
Etage
1
Stockwerke im Gebäude
3
Aufzug
Nein
Fläche
122 m² | gewerblich 152 m²
Zimmer
4
Schlafzimmer
3
Badezimmer
3+
Möbliert
Nein
Garage, parkplätze (auto)
1 parkplatz(e)
Heizung
Unabhängige heizung, fußbodenheizung
Klimaanlage
Kalt / warm
Oberflächendetail

Wohnung

Etage
1
Fläche
122,0 m²
Koeffizient
100%
Flächenart
Hauptsächlich
Verkaufsfläche
122,0 m²

Grundstück

Etage
Erdgeschoss
Fläche
30,0 m²
Koeffizient
100%
Flächenart
zusätzlich
Verkaufsfläche
30,0 m²
Preisinformationen
Preis
€ 505.000
Preis pro m²
3.322 €/m²
Energieeffizienz
  • Baujahr

    2024
  • Zustand

    Neu / Im Bau
  • Heizung

    Unabhängige heizung, fußbodenheizung
  • Klimatisierung

    Kalt / warm
Entdecken Sie jeden Winkel des Anwesens
+8
Zusätzliche Optionen

Inserenten kontaktieren

Oder