Büro zur Miete

€ 8.000/Monat
464 m²
0

Notiz

Anzeige aktualisiert am: 03.03.2026
Beschreibung

Referenz: EUROVILLA-651278

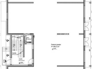
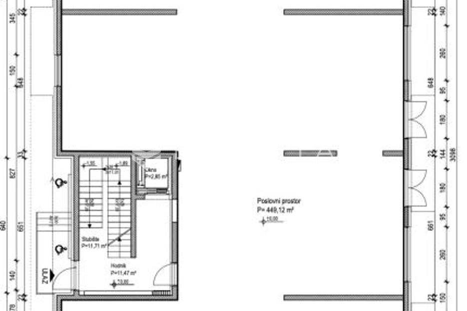
Zagreb, Jankomir, ulični poslovni prostor, NKP 449 m2 + dvorište u novogradnji na atraktivnoj lokaciji na Jankomiru.Karakteriziraju ga velike staklene stijene, vrhunska alu stolarija, visoki stropovi (4,15 m2). Iznajmljuje se u roh bau stanju no postoji mogućnost prilagodbe prostora potrebama zakupnika. Pripada mu dvorište od 150 m2 (potencijalno parkirna mjesta).Nalazi se na odličnoj lokaciji u blizini Samoborske ceste te poslovnog okruženja.Predviđeni završetak je rujan 2026.godineZa dodatna pitanja stojimo na raspolaganju.... Više na eurovilla.hr, ID: 651278
Wenn Sie mehr wissen möchten, können Sie mit Sarah Ivanković. sprechen
Merkmale
Vertrag
Miete
Art
Büro
Fläche
464 m²
Etage
Erdgeschoss
Oberflächendetail

Andere

Etage
Erdgeschoss
Fläche
464,0 m²
Koeffizient
100%
Flächenart
Hauptsächlich
Verkaufsfläche
464,0 m²
Preisinformationen
Preis
€ 8.000/Monat
Preis pro m²
17 €/m²
Kostendetails
Kaution
Nicht angegeben
Zusätzliche Optionen

Inserenten kontaktieren

Oder