Einfamilienhaus 2 m², neu, Bale

€ 920.000
2
2 m²
3+
Nein

Notiz

Anzeige aktualisiert am: 30.11.2025
Beschreibung

This description has been translated automatically and may not be accurate

Referenz: RE36946

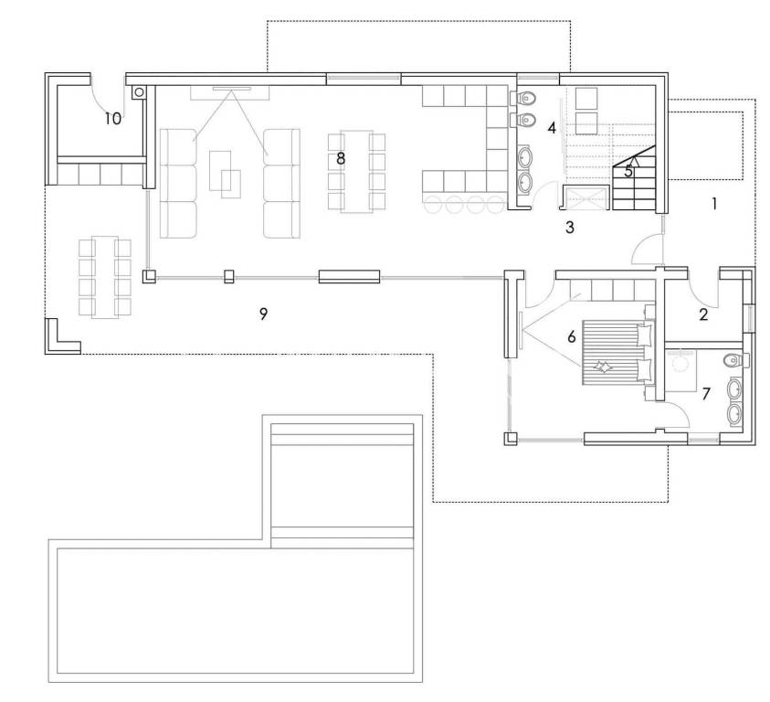
Istrien, Bale - Luxusvilla mit Pool Neubau 211 m2

Diese wunderschöne Villa befindet sich in der Nähe von Bale. Dieses luxuriöse Anwesen bietet einen exklusiven und luxuriösen Lebensstil in einer idyllischen Umgebung. Diese Villa erstreckt sich über zwei Etagen. Beim Betreten der Villa werden Sie von einem geräumigen und elegant eingerichteten Wohnbereich mit einem großen Wohnzimmer empfangen, das mit der Küche und dem Esszimmer verbunden ist. Dieses offene Konzept schafft einen geräumigen und komfortablen Raum für Zusammenkünfte und Unterhaltung mit Familie und Freunden. Modernes Design und viel Tageslicht erzeugen einen Eindruck von Luftigkeit und Luxus. Die Villa bietet zwei geräumige Schlafzimmer, jedes mit eigenem Bad, was maximale Privatsphäre und Komfort für jedes Familienmitglied oder jeden Gast bietet, der zu Besuch kommt. Jedes Zimmer ist elegant eingerichtet und bietet Komfort und Stil zugleich. Der Außenbereich dieser Villa ist ein wahres Paradies zum Entspannen und Genießen im Freien. Genießen Sie die warmen Sommertage auf der großzügigen Terrasse oder tauchen Sie in den schönen Pool ein. Zusätzliche Räume wie ein Gäste-WC und eine überdachte Terrasse bieten zusätzlichen Komfort und Bequemlichkeit.
Merkmale
Art
Einfamilienhaus
Vertrag
Verkauf
Etage
Erdgeschoss
Aufzug
Nein
Fläche
2 m²
Zimmer
2
Schlafzimmer
2
Badezimmer
3+
Terrasse
Nein
Andere Merkmale
  • Pool
Preisinformationen
Preis
€ 920.000
Preis pro m²
460.000 €/m²
Energieeffizienz

Energieverbrauch

A+

Grundriss
Screenshot 2023-06-20 at 13.44.18
Entdecken Sie jeden Winkel des Anwesens
+2
Zusätzliche Optionen

Inserenten kontaktieren

Oder