Zweizimmerwohnung neu, zweite Etage, Sukošan

€ 325.000
2
1
2
Nein

Notiz

Anzeige aktualisiert am: 26.11.2025
Beschreibung

This description has been translated automatically and may not be accurate

Referenz: RE865763

Zadar, Sukošan - "Olive Tree" Luxuriöse Zwei-Zimmer-Wohnung, Neubau

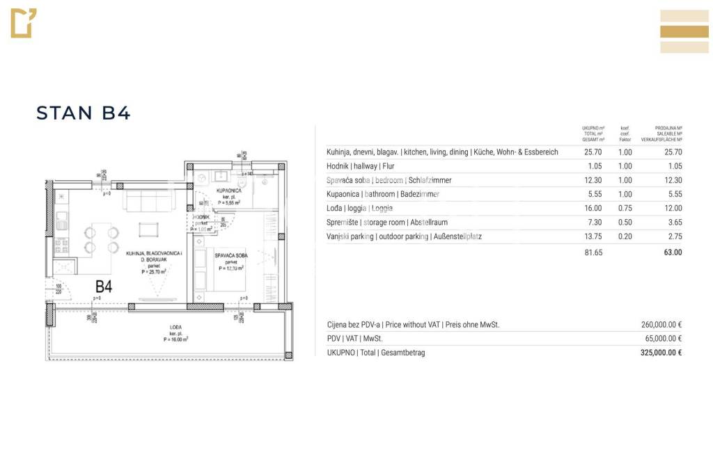
Nur 7 Autominuten von Zadar und 10 Minuten vom Flughafen entfernt liegt Sukošan, einer der begehrtesten Orte zum Leben und Investieren an der kroatischen Küste. Die ausgezeichnete Verkehrsanbindung, die gut ausgebaute Infrastruktur und die Nähe zum Meer machen es zur idealen Wahl für alle, die eine Kombination aus entspannter mediterraner Umgebung und modernem Komfort suchen. In einem ruhigen Teil von Sukošan, umgeben von jahrhundertealten Olivenhainen und Grünflächen, befindet sich das Projekt Olive Tree – ein Komplex aus drei eleganten Gebäuden, die sich perfekt in die natürliche Landschaft einfügen. Jede Wohnung bietet ein hohes Maß an Privatsphäre, viel Licht und einen Blick, der bis zum Archipel von Zadar reicht. Luxuriöse Zwei-Zimmer-Wohnung B3 im 2. Stock des Olive Tree B Gebäudes. Die Wohnung besteht aus: Küche mit Essbereich und Wohnzimmer (25,70 m2) Flur (1,05 m2) Schlafzimmer 1 (12,30 m2) Badezimmer (5,55 m2) überdachte Terrasse (12,00 m2) Abstellraum (3,08 m2) Außenstellplatz (13,75) Gesamtnettonutzfläche 62,43 m2. Olive Tree B Gebäude - ein Ort der Stille, des Lichts und der unaufdringlichen Eleganz. Olive Tree B ist ein Wohngebäude, das für diejenigen geschaffen wurde, die Wert auf Raum, Stille und Luftigkeit legen. Es besteht aus drei exklusiven Wohnungen, die jeweils sorgfältig entworfen wurden, um maximalen Komfort, Privatsphäre und ästhetisches Erlebnis zu bieten. Große Terrassen mit Meerblick, viel Tageslicht und ein harmonisches Verhältnis von Innenraum und Umgebung machen Olive Tree B zur perfekten Wahl für das Familienleben oder einen luxuriösen Rückzugsort aus der Hektik der Stadt. Das Projekt wurde nach höchsten Standards gebaut – POROTHERM-Blöcke, STO-Fassade, REHAU-Tischlerei und Naturstein Römischer Travertin in Treppenhäusern und Balkonen. Im Innenraum dominieren mehrschichtiges Eichenparkett, Fußbodenheizung (DEVI), Bosch-Geräte in Küchen und Badezimmern sowie Mitsubishi-Klimaanlagen. Glasgeländer und dezente Ambientebeleuchtung unterstreichen zusätzlich die Eleganz des Raumes. Olive Tree ist mehr als nur eine Immobilie – es ist ein Lebensstil, der Schönheit, Funktionalität und langfristigen Wert vereint. Die Fertigstellung der Gebäude A und B wird für Ende Juli 2025 und des Gebäudes C für Anfang Juni 2026 erwartet. Der Preis der Wohnung inklusive Mehrwertsteuer beträgt 325.000 EUR Für weitere Informationen und Besichtigungen – kontaktieren Sie uns vertrauensvoll.
Merkmale
Art
Wohnung
Vertrag
Verkauf
Etage
2 etage
Aufzug
Nein
Zimmer
2
Schlafzimmer
1
Badezimmer
1
Terrasse
Nein
Garage, parkplätze (auto)
1 parkplatz(e)
Heizung
Zentralheizung, fußbodenheizung, wärmepumpe betrieben
Klimaanlage
Eigenständig, kalt / warm
Preisinformationen
Preis
€ 325.000
Energieeffizienz
  • Zustand

    Neu / Im Bau
  • Heizung

    Zentralheizung, fußbodenheizung, wärmepumpe betrieben
  • Klimatisierung

    Eigenständig, kalt / warm
  • Energieausweis

    Befreit
Grundriss
Entdecken Sie jeden Winkel des Anwesens
+9
Zusätzliche Optionen

Inserenten kontaktieren

Oder