Vierzimmerwohnung neu, zweite Etage, Jelsa

€ 455.000
4
1 m²
2
2
Nein
Terrasse

Notiz

Anzeige aktualisiert am: 26.11.2025
Beschreibung

This description has been translated automatically and may not be accurate

Referenz: RE108609

Hvar - Dreizimmerwohnung Neubau

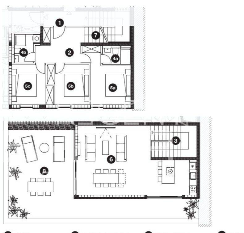
Im zweiten Stock des Gebäudes B befindet sich die Wohnung S8. Geräumige Drei-Zimmer-Wohnung mit funktionellem Grundriss und luftiger Terrasse. Die Wohnung besteht aus drei Schlafzimmern, einem Wohnzimmer mit Küche, zwei Badezimmern, einem Flur mit Garderobe, einem Treppenhaus und einer Terrasse. Das Projekt wird an einem erhöhten Standort, etwa 350 Meter vom Meer entfernt, mit Blick ins Grüne und in angenehmer Entfernung vom Stadttrubel realisiert. In der Nähe befinden sich alle wichtigen Einrichtungen – Geschäfte, Restaurants, Yachthafen und Cafés – die in wenigen Minuten zu Fuß erreichbar sind. Das Gebäude wird nach den höchsten Baustandards, mit hochwertigen Materialien und Liebe zum Detail gebaut. Es umfasst Stahlbetonwände, ein ETICS-Wärmedämmsystem, Dreifach-Isolierglas, elektrische Rollladenheber, Klimaanlagen, Fußbodenheizung in den Badezimmern und erstklassige Keramik. Das Projekt umfasst insgesamt 18 Parkplätze, davon 10 überdacht, und der Parkplatz wird je nach Typ ausgewählt und zusätzlich bezahlt. Vrboska ist eine der authentischsten Siedlungen auf Hvar und liegt zwischen Jelsa und Stari Grad. Ihre geschützte Bucht, Steinbrücken und die Nähe zu versteckten Stränden schaffen die ideale Umgebung für ein entspanntes Inselleben. Die Fertigstellung ist bis zum Sommer 2026 geplant, und die Mehrwertsteuer ist im Preis der Wohnung enthalten. Für weitere Informationen und eine Besichtigung kontaktieren Sie uns bitte.
Merkmale
Art
Wohnung
Vertrag
Verkauf
Etage
2 etage
Aufzug
Nein
Fläche
1 m²
Zimmer
4
Schlafzimmer
3
Badezimmer
2
Terrasse
Ja
Garage, parkplätze (auto)
1 parkplatz(e)
Heizung
Zentralheizung, heißluft heizung, stromversorgung
Preisinformationen
Preis
€ 455.000
Preis pro m²
455.000 €/m²
Energieeffizienz
  • Baujahr

    2025
  • Zustand

    Neu / Im Bau
  • Heizung

    Zentralheizung, heißluft heizung, stromversorgung
  • Energieausweis

    Befreit
Grundriss
Entdecken Sie jeden Winkel des Anwesens
+3
Zusätzliche Optionen

Inserenten kontaktieren

Oder