Wohnung neu, erste Etage, Jelsa

€ 188.000
5+
1
1
Nein

Notiz

Anzeige aktualisiert am: 26.11.2025
Beschreibung

This description has been translated automatically and may not be accurate

Referenz: RE115090

Hvar, Vrboska - Einzimmerwohnung Neubau

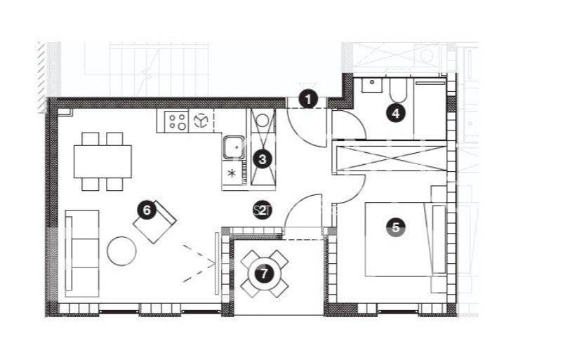
Im ersten Stock von Gebäude A in Vrboska befindet sich die Wohnung S5. Kompakte und funktionale Einzimmerwohnung mit Loggia, ideal für Erholung, zwei Personen oder als Investition für touristische Vermietung. Sie besteht aus einem Schlafzimmer, einem Wohnzimmer mit Küche, einem Badezimmer, einem Flur mit Garderobe und einer Loggia. Das Gebäude wird nach den höchsten Standards des modernen Bauens errichtet, mit Schwerpunkt auf Qualität, zeitgemäßem Design und ordentlich gestalteter Umgebung. Bei der Ausführung werden hochwertige Materialien verwendet: Stahlbeton-Tragwände, ETICS-System mit Wärmedämmung (min. 10 cm), dreifach IZO-Glas, elektrische Rollladenheber, Klimaanlagen, Fußbodenheizung im Badezimmer und erstklassige Keramik. Im Rahmen des Projekts sind insgesamt 18 Parkplätze vorgesehen, von denen 10 überdacht sind. Der Parkplatz wird je nach Typ ausgewählt und zusätzlich bezahlt. Das Gebäude befindet sich in ruhiger und leicht erhöhter Lage, etwa 350 Meter vom Meer entfernt und nur wenige Gehminuten von allen wichtigen Einrichtungen entfernt – Geschäften, Restaurants, Yachthafen und Cafés. Vrboska, bekannt für seine Steinarchitektur, Brücken und die natürlich geschützte Bucht, liegt zwischen Jelsa und Stari Grad. Umgeben von Pinienwald und kristallklarem Meer, bietet es die perfekte Atmosphäre für ein entspanntes Inselleben. Die Fertigstellung des Baus ist bis Sommer 2026 geplant, und die Mehrwertsteuer ist im Preis enthalten. Für weitere Informationen oder eine Vereinbarung zur Besichtigung kontaktieren Sie uns bitte.
Merkmale
Art
Wohnung
Vertrag
Verkauf
Etage
1 etage
Aufzug
Nein
Zimmer
5+
Schlafzimmer
1
Badezimmer
1
Terrasse
Nein
Garage, parkplätze (auto)
1 parkplatz(e)
Heizung
Zentralheizung, heißluft heizung, stromversorgung
Klimaanlage
Eigenständig, kalt / warm
Preisinformationen
Preis
€ 188.000
Energieeffizienz
  • Baujahr

    2025
  • Zustand

    Neu / Im Bau
  • Heizung

    Zentralheizung, heißluft heizung, stromversorgung
  • Klimatisierung

    Eigenständig, kalt / warm
Grundriss
Entdecken Sie jeden Winkel des Anwesens
+3
Zusätzliche Optionen

Inserenten kontaktieren

Oder