Dreizimmerwohnung neu, Erdgeschoss, Sukošan

€ 326.000
3
1
0
Nein
Terrasse

Notiz

Anzeige aktualisiert am: 28.11.2025
Beschreibung

This description has been translated automatically and may not be accurate

Referenz: RE656610

Zadar, Sukošan – Dreizimmerwohnung 93,23 m², Neubau

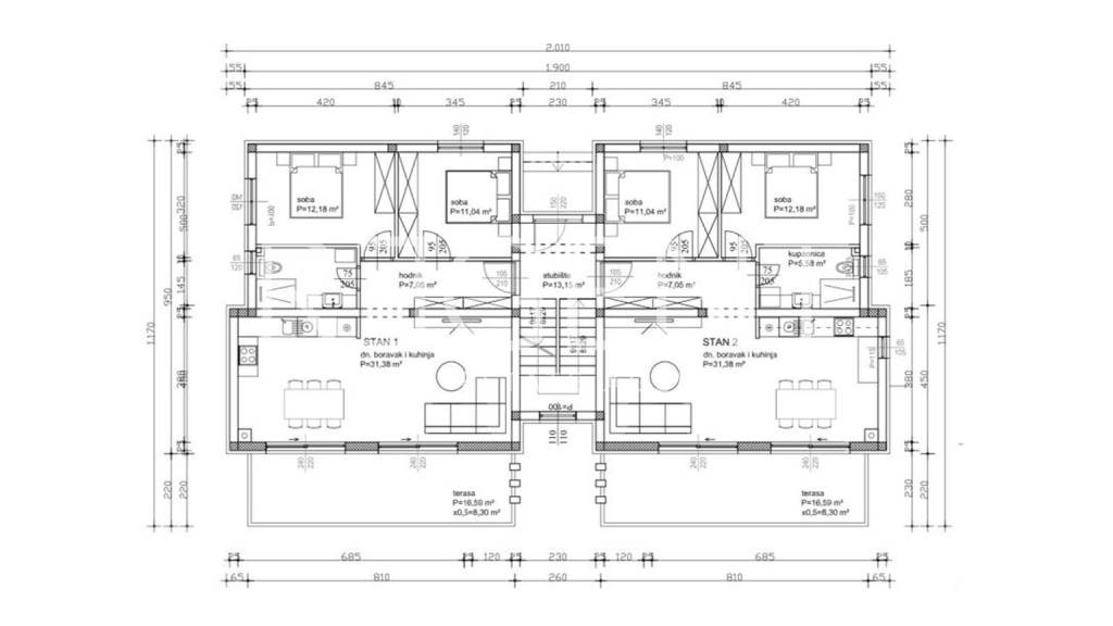
Dreizimmerwohnung mit einer Fläche von 93,23 m², im Erdgeschoss eines modernen Wohngebäudes in Sukošan bei Zadar gelegen. Die Wohnung befindet sich in ruhiger Lage, nur wenige Gehminuten vom Meer und allen wichtigen Einrichtungen entfernt. Die Wohnung besteht aus einem Flur, zwei Schlafzimmern, einem Badezimmer, einer Küche und einem Wohnzimmer mit Zugang zur Terrasse. Die Gesamtfläche beträgt 78,03 m². Zur Wohnung gehören außerdem ein Garten von 152 m² und ein Außenparkplatz. Die Wohnung wird mit hochwertigen Materialien und Ausstattungen ausgestattet sein: • Stahlbetonkonstruktion, Ziegelwände • Holz-Aluminium-Tischlerei von hoher Qualität • Italienische Porzellanfliesen 1. Klasse (Marazzi/Mirage) • Eichenparkett in den Schlafzimmern • Fußbodenheizung im Badezimmer und Wohnzimmer • Mitsubishi Multi-Split-Klimaanlage • Stein im Treppenhaus und am Eingang zum Gebäude • Villeroy & Boch Sanitäranlagen • Parkplatz mit Betonwürfeln gepflastert • Gepflegte Gärten und gartenbaulich gestaltete Umgebung • Einbruchhemmende Eingangstüren Das Gebäude befindet sich derzeit im Bau, die Fertigstellung ist für April 2026 geplant. Diese Immobilie ist eine ausgezeichnete Gelegenheit für das Familienleben, aber auch als Investition für die touristische Vermietung. Für weitere Informationen oder einen Besichtigungstermin kontaktieren Sie uns bitte.
Merkmale
Art
Wohnung
Vertrag
Verkauf
Etage
Erdgeschoss
Stockwerke im Gebäude
2
Aufzug
Nein
Zimmer
3
Schlafzimmer
3
Badezimmer
1
Terrasse
Ja
Garage, parkplätze (auto)
1 parkplatz(e)
Heizung
Zentralheizung, heißluft heizung, stromversorgung
Klimaanlage
Zentral, kalt
Entfernung vom Meer
200 m
Preisinformationen
Preis
€ 326.000
Energieeffizienz

Energieverbrauch

A

Grundriss
Entdecken Sie jeden Winkel des Anwesens
+5
Zusätzliche Optionen

Inserenten kontaktieren

Oder