Πολυκατοικία - Κτίριο προς Ενοικίαση

€ 35/μήνα

Σημείωση

Τελευταία ενημέρωση: 03/03/2026
Περιγραφή

κωδικός: RE778943

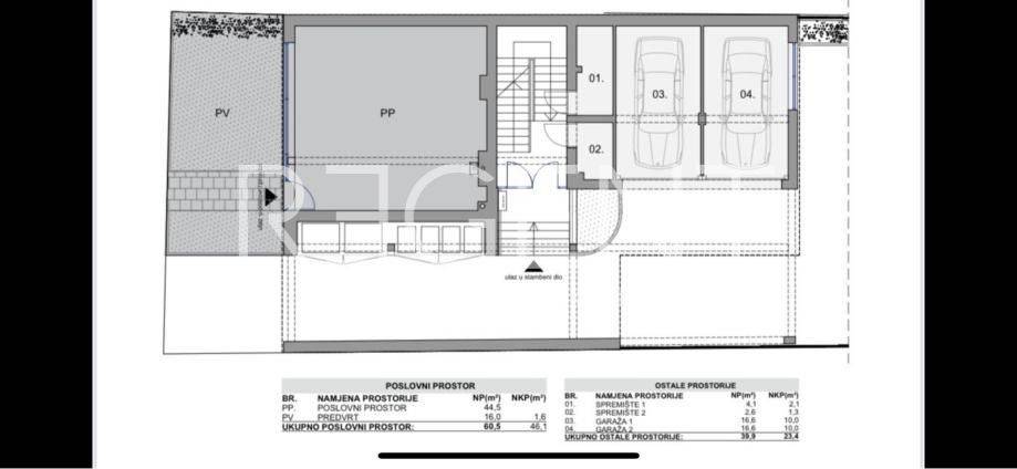
Iznajmljuje se poslovni prostor površine 46,10 m2 s pripadajućim vrtom i dva parkirna mjesta u prizemlju novogradnje na frekventnoj lokaciji u Gajnicama. Prostor je idealan za uredske djelatnosti, salone, ordinacije ili mirne obrte koji traže dobru vidljivost i dostupnost. Poslovni prostor ima vlastiti ulaz i obilje prirodnog svjetla, što osigurava ugodno i profesionalno radno okruženje. Ukupna unutarnja površina iznosi 44,50 m², a dodatna vrijednost je vrt od 20 m² u vlasništvu, koji omogućuje uređenje vanjske terase, postavljanje zelenila ili korištenje u promotivne svrhe. Prostor je funkcionalnog tlocrta i prilagodljiv različitim djelatnostima poput ureda, kozmetičkog ili frizerskog salona, ordinacije, showrooma ili edukacijskog prostora. Gajnice su jedno od najprometnijih i dobro povezanih zapadnih zagrebačkih naselja. Lokacija u blizini Aleje grada Bolonje osigurava visoku frekvenciju pješaka i vozila te odličnu vidljivost. U neposrednoj blizini nalaze se trgovački centar, javni prijevoz, javni parking i brojni svakodnevni sadržaji, što ovu lokaciju čini izuzetno pogodnom za poslovanje. Prostor se nalazi u novogradnji te će biti završen i useljiv do ljeta 2026. godine. Ima zasebno brojilo režija, što omogućuje potpunu kontrolu troškova. Cijena najma i trajanje ugovora definiraju se prema dogovoru, ovisno o potrebama najmoprimca. Za dodatne informacije, tlocrt ili dogovor oko budućeg najma, slobodno nas kontaktirajte. Ovaj poslovni prostor predstavlja izvrsnu priliku za dugoročno poslovanje na traženoj lokaciji u zapadnom dijelu Zagreba.
Χαρακτηριστικά
Συμβόλαιο
Ενοικίαση
Τύπος
Κτίριο
Σύνολο ορόφων
3
Γκαράζ, χώροι στάθμευσης
1 σε πάρκινγκ/κλειστό πάρκινγκ, 2 εξωτερικό
Διαθεσιμότητα
Διαθέσιμο
Πληροφορίες τιμής
Τιμή
€ 35/μήνα
Λεπτομέρειες κόστους
Εγγύηση
Δεν αναφέρεται
Ενεργειακή απόδοση
  • Έτος κατασκευής

    2026
  • Κατάσταση

    Νεόδμητο / Υπό κατασκευή
  • Θέρμανση

    Κεντρική, θερμαντικά σώματα, τροφοδοσία υγραέριο
  • Κλιματιστικό μηχάνημα

    Αυτόνομη, κρύο/ζέστη
Σχέδιο ακινήτου
Πρόσθετες επιλογές

Επικοινώνησε με τον αγγελιοδότη

Ή