1/23


Μονοκατοικία Centar, Pula, Centar, Πούλα
€ 3.500/μήνα
Τελευταία ενημέρωση: 22/01/2026
Περιγραφή
κωδικός: 2029
ID CODE: 2029
Sendi Vinski
Agent s licencom
Mob: 0038598443289
Tel: 0038551222673
E-mail: prodaja@ardor-realestate.com
www.ardor-realestate.com
ARDOR REAL ESTATE AGENCY d.o.o.
Mob: 0997699457
Tel: +385 98 443 289
E-mail: prodaja@ardor-realestate.com
www.ardor-realestate.com
Χαρακτηριστικά
- Τύπος
- Μονοκατοικία
- Συμβόλαιο
- Ενοικίαση
- Σύνολο ορόφων
- 1
- Ανελκυστήρας
- Όχι
- Εμβαδόν
- 350 m²
- Δωμάτια
- 5+
- Υπνοδωμάτια
- 4
- Μπάνια
- 3+
- Μπαλκόνι
- Όχι
- Βεράντα
- Ναι
- Γκαράζ, χώροι στάθμευσης
- 3 εξωτερικό
- Θέρμανση
- Αυτόνομη, θέρμανση αέρος
- Κλιματισμός
- Αυτόνομη, κρύο/ζέστη
Πληροφορίες τιμής
- Τιμή
- € 3.500/μήνα
- Τιμή ανά m²
- 10 €/m²
Λεπτομέρειες κόστους
- Εγγύηση
- Δεν αναφέρεται
Ενεργειακή απόδοση
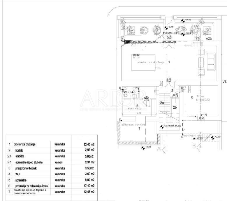
Σχέδιο ακινήτου
Ανακαλύψτε κάθε γωνιά του ακινήτου
Πρόσθετες επιλογές