Οικοδομήσιμο οικόπεδο προς Πώληση

€ 455.000
1.144 m²

Σημείωση

Τελευταία ενημέρωση: 06/02/2026
Περιγραφή

κωδικός: 4377

Malinska, građevinsko zemljište s pravomoćnom građevinskom dozvolom!

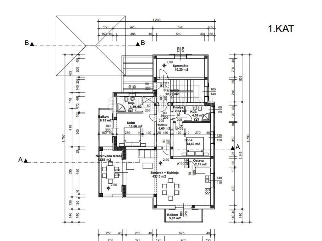
Građevinsko zemljište površine 1144 m2, s pravomoćnom građevinskom dozvolom za rušenje postojeće kuće, i za izgradnju samostojeće kuće s dvije stambene jedinice, bruto površine 295 m2, s garažom površine 37 m2, i bazenom, dimenzija 4 m x 8 m.
Prema glavnom projektu, svaka etaža kuće predstavlja jednu stambenu jedinicu.
Svaka stambene jedinica sastoji se od hodnika, spremišta, ostave, dvije spavaće sobe, jedna sa svojom kupaonicom, predsoblja, kupaonice, kuhinje s blagovaonom i dnevnim boravkom, s izlazima na terase.
Jedinica na prvom katu imala bi, uz navedeno, još dva balkona.

Trenutno se na terenu nalazi kuća građena 80-ih godina, s dvije odvojene stambene jedinice, spremištem, i nadstrešnicom ispod koje je kameni roštilj s ljetnom kuhinjom.
S prvog kata pruža se pogled na more!

Plaćeni komunalni doprinosi.
Mirna lokacija, rub građevinske zone, 1 700 m od mora!

ID CODE: 4377

Premium nekretnine Malinska
Mob: +385915474709
Tel: +38551858364
E-mail: info@premium-nekretnine.com
Χαρακτηριστικά
Συμβόλαιο
Πώληση
Τύπος
Οικοδομήσιμο οικόπεδο
Εμβαδόν
1.144 m²
Πληροφορίες τιμής
Τιμή
€ 455.000
Τιμή ανά m²
398 €/m²
Ανακαλύψτε κάθε γωνιά του ακινήτου
+13
Πρόσθετες επιλογές

Επικοινώνησε με τον αγγελιοδότη

Ή