Τριάρι Zaton, Nin, Nin

€ 360.000
3
71 m²
1
ΙΣ
Ναι
Βεράντα

Σημείωση

Τελευταία ενημέρωση: 22/01/2026
Περιγραφή

This description has been translated automatically and may not be accurate

κωδικός: 533

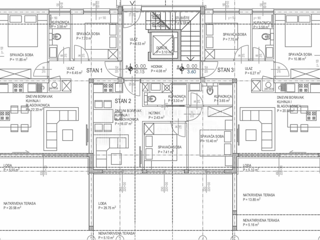
Apartment 1 — luxury new building in Zaton, 20 m from the beach
We offer Apartment 1, located on the ground floor of a luxury new building in Zaton, only 20 meters from the beach.
The building is under construction and consists of 6 apartments and 2 exclusive penthouses. All apartments have an open sea view.

Layout and areas:
Apartment 1 consists of:

Living room, kitchen and dining room – 22.33 m²
Bedroom 1 – 11.85 m²
Bedroom 2 – 7.10 m²
Bathrooms – 3.58 m²
Entrance / hallway – 6.45 m²
Loggia – 5.55 m²
Covered terraces – 20.58 m²

Areas:
Total interior area of ​​the apartment (closed space): 51.31 m²
Total calculation (net usable) area with accessories: approx. 71.26 m²
Gross area with included parking spaces and terrace: 104.94 m²
2 outdoor parking spaces included

Equipment and materials:
Schüco aluminum joinery with electric shutters and blinds
Schindler elevator
Underfloor heating (heat pump) + Mitsubishi air conditioners
First-class large-format ceramics and high-quality parquet floors
Owner: legal entity - buyer exempt from real estate sales tax

Special features:
Exceptional sea view
Ideal property for luxury rental
Quiet and elite location in Zaton, within easy reach of all facilities

Contact:
For any additional information and to arrange a tour, please feel free to contact us:
Phone: +385 95 7355 171
E-mail: info@prestigeinvest.hr

ID CODE: 533

Ivana Ančić
Voditelj ureda
Mob: +385 95 73 55 171
Tel: +385 95 588 8082
E-mail: info@prestigeinvest.hr
www.prestigeinvest.hr
Χαρακτηριστικά
Τύπος
Διαμέρισμα
Συμβόλαιο
Πώληση
Όροφος
Ισόγειο
Σύνολο ορόφων
2
Ανελκυστήρας
Ναι
Εμβαδόν
71 m²
Δωμάτια
3
Υπνοδωμάτια
2
Μπάνια
1
Μπαλκόνι
Όχι
Βεράντα
Ναι
Γκαράζ, χώροι στάθμευσης
2 εξωτερικό
Θέρμανση
Αυτόνομη, θέρμανση αέρος
Κλιματισμός
Αυτόνομη, κρύο/ζέστη
Πληροφορίες τιμής
Τιμή
€ 360.000
Τιμή ανά m²
5.070 €/m²
Ενεργειακή απόδοση

Κατανάλωση ενέργειας

A+

Ανακαλύψτε κάθε γωνιά του ακινήτου
+33
Πρόσθετες επιλογές

Επικοινώνησε με τον αγγελιοδότη

Ή