1/6


Τριάρι Novi Marof, Novi Marof
€ 191.916
Τελευταία ενημέρωση: 26/01/2026
Περιγραφή
This description has been translated automatically by Google Translate and may not be accurate
κωδικός: 1799
ID CODE: 1799
Ante Matušić
Agent s licencom
Mob: 0995068331
E-mail: ante@rednekretnine.com
www.rednekretnine.com
Χαρακτηριστικά
- Τύπος
- Διαμέρισμα
- Συμβόλαιο
- Πώληση
- Όροφος
- 1 όροφος
- Σύνολο ορόφων
- 3
- Ανελκυστήρας
- Ναι
- Εμβαδόν
- 71 m²
- Δωμάτια
- 3
- Υπνοδωμάτια
- 2
- Μπάνια
- 1
- Μπαλκόνι
- Ναι
- Βεράντα
- Όχι
- Γκαράζ, χώροι στάθμευσης
- 1 εξωτερικό
- Κλιματισμός
- Αυτόνομη, κρύο/ζέστη
Πληροφορίες τιμής
- Τιμή
- € 191.916
- Τιμή ανά m²
- 2.703 €/m²
Ενεργειακή απόδοση
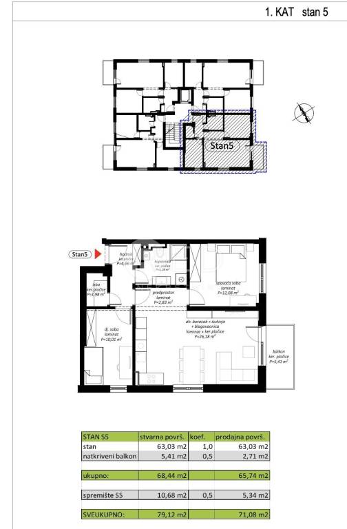
Σχέδιο ακινήτου

Ανακαλύψτε κάθε γωνιά του ακινήτου
Πρόσθετες επιλογές