Δυάρι νέο, Privlaka

€ 350.315
2
100 m²
2
Όχι

Σημείωση

Τελευταία ενημέρωση: 04/02/2026
Περιγραφή

This description has been translated automatically and may not be accurate

κωδικός: S62

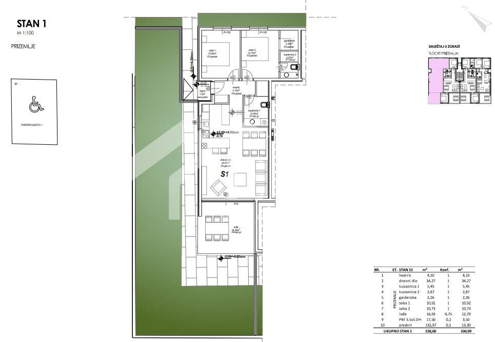
A spacious two-bedroom apartment (S1) on the ground floor of a new building is for sale in Privlaka, in the immediate vicinity of Zadar. The total area of the apartment with its annexes is 100.09 m2.

This property consists of a spacious living room with kitchen and dining area, two bedrooms, two bathrooms, a walk-in closet, and a loggia. The apartment includes one parking space and a garden with an area of 130 m2.
The apartment is located in a building with 10 residential units, situated in the second row from the sea. The access to the building is private, fenced, and secured with a system. Ground floor apartments in this building are adapted for persons with disabilities.

The property is built and equipped with high-quality materials, and maximum comfort will be ensured for each residential unit by underfloor heating in the living room, kitchen, and bathrooms, air conditioning in all rooms, high-quality parquet and ceramic tiles, and top-quality PVC joinery.

The planned completion is spring 2026.

The buyer DOES NOT PAY real estate transfer tax when purchasing this property!

For any additional information or to visit the property, feel free to contact us.



Emil Perović
+385 98 63 36 17
info@epic-nekretnine.com
EPIC NEKRETNINE d.o.o.
Polačišće 4, Zadar
Εάν θέλετε να μάθετε περισσότερα, μπορείτε να μιλήσετε με Emil Perović.
Χαρακτηριστικά
Τύπος
Διαμέρισμα | Ακίνητο μεσαίας κατηγορίας
Συμβόλαιο
Πώληση
Ανελκυστήρας
Όχι
Εμβαδόν
100 m²
Δωμάτια
2
Υπνοδωμάτια
2
Μπάνια
2
Μπαλκόνι
Όχι
Βεράντα
Όχι
Θέρμανση
Αυτόνομη, θερμαντικά σώματα, ρεύμα
Κλιματισμός
Αυτόνομη
Θέα
Θάλασσα
Άλλα χαρακτηριστικά
  • Πόρτα ασφαλείας
Πληροφορίες τιμής
Τιμή
€ 350.315
Τιμή ανά m²
3.503 €/m²
Ενεργειακή απόδοση
  • Έτος κατασκευής

    2026
  • Κατάσταση

    Νεόδμητο / Υπό κατασκευή
  • Θέρμανση

    Αυτόνομη, θερμαντικά σώματα, ρεύμα
  • Κλιματιστικό μηχάνημα

    Αυτόνομη
Ανακαλύψτε κάθε γωνιά του ακινήτου
+12
Πρόσθετες επιλογές

Επικοινώνησε με τον αγγελιοδότη

Ή