map icon

Τριάρι νέο, Okrug

Okrug
€ 520.000
3
80 m²
2

Σημείωση

Τελευταία ενημέρωση: 20/02/2026
Περιγραφή

This description has been translated automatically and may not be accurate

κωδικός: 2035/236

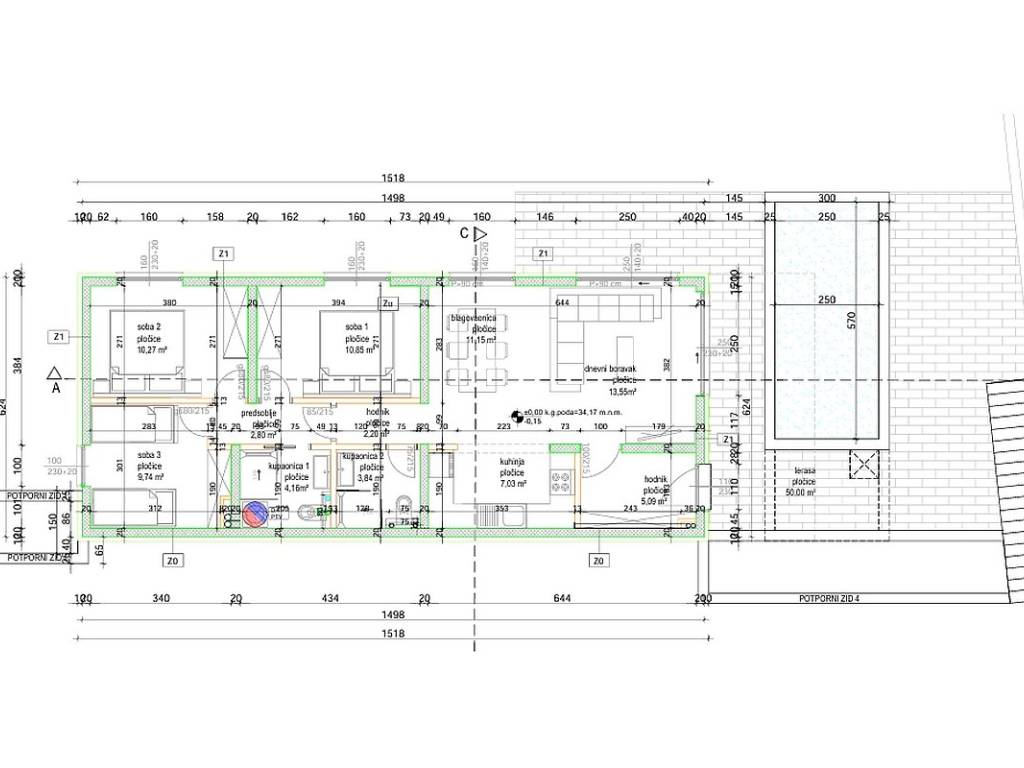
A luxurious apartment with a pool and garden in Okrug Gornji is for sale, with a partial sea view. It is in a great location, near the sea, with direct access to the beach. The apartment is north oriented and has its own private entrance.



It is located in a smaller residential building with only three apartments and is located on the ground floor of the building. It has 80,08 m and consists of an anteroom, two hallways, three bedrooms, two bathrooms, a kitchen with a dining room and a living room that leads to a paved terrace and a garden with a pool of a total of 160,81 m. The garden and pool provide additional space for enjoying, sunbathing and socializing outdoors.



The apartment also has two outdoor parking spaces, and top quality materials were used in the construction and furnishing (high class tiles and sanitary ware, air conditioner in every room, underfloor heating throughout the apartment, aluminum shutters, mosquito nets). The entire space is equipped to provide a pleasant stay throughout the year.



The building is located in a quiet and attractive location, in the immediate vicinity of the sea, promenade, restaurants and all necessary amenities. It is only a few minutes drive from the center of Trogir and Split airport, which further increases its value, both for personal use and as a tourist investment.



Given the spacious garden and swimming pool, the apartment is an excellent choice for all those looking for a property that offers additional amenities, and in a location close to the sea and the town center. It is also suitable for families looking for a modern apartment in a quiet environment, with quality construction and a functional layout of the rooms.

Χαρακτηριστικά
Τύπος
Διαμέρισμα | Πολυτελές ακίνητο
Συμβόλαιο
Πώληση
Εμβαδόν
80 m²
Δωμάτια
3
Μπάνια
2
Άλλα χαρακτηριστικά
  • Πισίνα
Πληροφορίες τιμής
Τιμή
€ 520.000
Τιμή ανά m²
6.500 €/m²
Ενεργειακή απόδοση
  • Κατάσταση

    Νεόδμητο / Υπό κατασκευή
  • Ενεργειακή πιστοποίηση

    Δεν υπόκειται
Ανακαλύψτε κάθε γωνιά του ακινήτου
+12
Πρόσθετες επιλογές

Επικοινώνησε με τον αγγελιοδότη

Ή