map icon

Δυάρι νέο, Okrug

Okrug
€ 628.000
2
93 m²
2

Σημείωση

Τελευταία ενημέρωση: 19/02/2026
Περιγραφή

This description has been translated automatically and may not be accurate

κωδικός: 2029/88

Luxury two-bedroom apartments located in the first row to the sea on island Čiovo.



On the ground floor of the building, there are two apartments with terraces and private gardens, designed in a Mediterranean style, while the apartments on the first floor offer spacious areas of 113 square meters, ideal for family living or tourist rentals.



The apartments have access to a large shared pool, spacious sun terraces, and pleasant outdoor dining areas. The entire property is surrounded by well-maintained green spaces, located both behind and alongside the buildings.



In the immediate vicinity, there are well-kept pebble beaches, beach bars, and sports courts.



The center of the village, with shops and restaurants, is only about 300 meters away. Split Airport is approximately a 15-minute drive by car. The location is ideal for those looking for a peaceful environment while still being close to urban amenities and enjoying all the benefits the region has to offer.



These apartments represent an excellent investment, whether as a peaceful place to live or as an opportunity to invest in a tourist business. Upon request, the apartments can be fully equipped and furnished, and professional maintenance of the property after construction ensures the preservation of investment value.



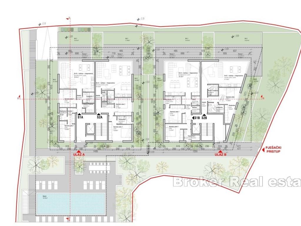
Ground floor, left (S1A): 93 m2 628,000

Ground floor, right (S2A): 110 m2 714,000 Reserved

1st floor, left (S3A): 128 m2 862,000

1st floor, right (S4A): 125 m2 843,000



On the second floor of the same building, a spacious three-bedroom apartment is available under agency code 2029/89. Apartments in the neighboring building are also for sale under codes 2029/90 and 2029/91.

Χαρακτηριστικά
Τύπος
Διαμέρισμα | Πολυτελές ακίνητο
Συμβόλαιο
Πώληση
Εμβαδόν
93 m²
Δωμάτια
2
Μπάνια
2
Γκαράζ, χώροι στάθμευσης
1 σε πάρκινγκ/κλειστό πάρκινγκ, 1 εξωτερικό
Άλλα χαρακτηριστικά
  • Πισίνα
Πληροφορίες τιμής
Τιμή
€ 628.000
Τιμή ανά m²
6.753 €/m²
Ενεργειακή απόδοση
  • Κατάσταση

    Νεόδμητο / Υπό κατασκευή
  • Ενεργειακή πιστοποίηση

    Δεν υπόκειται
Ανακαλύψτε κάθε γωνιά του ακινήτου
+12
Πρόσθετες επιλογές

Επικοινώνησε με τον αγγελιοδότη

Ή