Διαμέρισμα νέο, πρώτος όροφος, Plovanija - Vidikovac, Ζάδαρ

€ 335.000
5+
116 m²
2
1
Μπαλκόνι
Βεράντα
Αποθήκη

Σημείωση

Τελευταία ενημέρωση: 13/04/2026
Περιγραφή

κωδικός: 898-1

>* ZADAR - SKROČINI - VIDIKOVAC - VETERINARSKA - "EURO-HORTUS" PRILIKA!

>* LUKSUZAN TROSOBAN STAN 115,83 m2 S KROVNOM TERASOM, GARAŽNIM I VANJSKIM PARKIRNIM MJESTOM

>* PANORAMSKI POGLED NA GRAD ZADAR I ZADARSKI ARHIPELAG
Stambeni kompleks Euro-Hortus moderna je stambena zgrada smještena na TOP - LOKACIJI u mirnom dijelu Zadra kod čuvene "VETERINARSKE"

"EURO - HORTUS" objekat visoke energetske učinkovitosti razred "A", krasi moderna i suvremena novogradnja a sastoji se od 5 (pet) etaža: jedne podzemne i četiri nadzemne etaže, računajući i krovnu terasu.
*Ukupno 7 (sedam) stambenih jedinica smjestilo se na tri (3) etaže, 3 (tri) stana u prizemlju i po 2 (dva) na prvom i na drugom katu s pripadajućim parkirnim mjestima od kojih su 4 (četiri PM) smjestila u podzemnu etažu 4x GPM (garažna parkirna mjesta) kao i ostave.
*Stanovima u prizemlju pridružen je vrt dok stanovi s prvog i s drugog kata osim GPM i ostave imaju pripadajuću i etažiranu krovnu terasu.

Preostale jedinice u Euro-Hortusu:
- Stan S-4 (Prvi kat):
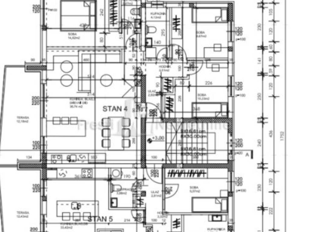
Tip: Stan s 3 spavaće sobe. Površina: 115, 83 m.
Stan S-4 korisne površine od 115,83m2 smješten na 1. katu stambene zgrade, a sastoji se od:

3 (tri) spavaće sobe
2 (dvije) kupaonice,
prostranog dnevnog boravka s kuhinjom i blagavaonicom: 37m2
natkrivene terase 12,18 m (netto 6,09 m),
krovne terase 34,52 m (netto 8,63 m),
2 parkirna mjesta od kojih je jedno GPM (garažno parkirno mjesto):19,93 m (netto 9,97 m)
Vanjsko PM: 13,75 m (netto 2,75 m),
Ostave 9,62 m (netto 4,81 m)

Površina zatvorenog stambenog prostora iznosi 83,58 m, dok je ukupna korisna površina obračunata sa zadanim koeficijentima i sa svim pripadcima 115,83 m.

Zgrada se nalazi u mirnom kvartu, idealnom za obiteljski život ili kao odlična investicija za najam.U neposrednoj blizini nalaze se svi važni sadržaji trgovine, škola, vrtić, ugostiteljski objekti i javni prijevoz.

TEHNIČKI OPIS I OPREMA ZGRADE:

uređeni vrtovi koji pripadaju stanovima u prizemlju
privatne krovne terase s pripremom za ljetne kuhinje i jacuzzi hot tub koje pripadaju stanovima na prvom i drugom katu | priprema za elektro punjenje auta
protuprovalna/protupozarna ulazna vrata renomiranogproizvođača
Sustav dvoslojnih ISO kliznih stijena
komorna vanjska stolarija sa all season staklima
podovi: parket i keramika prve klase ili epoxy | walk-in tus sa ruza sustavom
vrhunska sanitarna oprema renomiranih proizvođaca | podno grijanje
klima u svakoj sobi
A+ energetski certifikat | smart ključ ( samo jedan ključ za sva vrata)
priključci za TV/Net na nekoliko mjesta u DB, u svakoj sobi pa čak i na natkrivenom balkonu
fasada stiropor od 10 cm
objekt građen po najvišim standardima zaštite od potresa (8* Richter)

Za sve ostale informacije, obilazak, rezervaciju te kupoprodaju ove Nekretnine obratite nam se s povjerenjem.

RADNO VRIJEME: od ponedjeljka do petka između 8:00 i 16:00 sati, subotom od 09:00 do 13:00 sati.

Unaprijed se zahvaljujemo na razumijevanju i suradnji,

S poštovanjem.
Vaš Fresti team FRESTI Nekretnine

Put Bokanjca 29, 23000 Zadar
mob.: +385 95 860 66 22
e-mail: frestinekretnine@gmail.com
Εάν θέλετε να μάθετε περισσότερα, μπορείτε να μιλήσετε με Frane Jusup.
Χαρακτηριστικά
Τύπος
Διαμέρισμα | Ολική ιδιοκτησία
Συμβόλαιο
Πώληση
Όροφος
1
Σύνολο ορόφων
2
Εμβαδόν
116 m²
Δωμάτια
5+
Υπνοδωμάτια
3
Μπάνια
2
Επιπλωμένο
Όχι
Μπαλκόνι
Ναι
Βεράντα
Ναι
Γκαράζ, χώροι στάθμευσης
1 σε πάρκινγκ/κλειστό πάρκινγκ, 2 εξωτερικό
Θέα
Θάλασσα
Άλλα χαρακτηριστικά
  • Πόρτα ασφαλείας
  • Τουαλέτα
Λεπτομέρεια επιφάνειας

Λοιπές κατηγορίες

Όροφος
1
Εμβαδόν
116,0 m²
Συντελεστής
100%
Τύπος επιφάνειας
Κύρια
Συνολική επιφάνεια
116,0 m²
Πληροφορίες τιμής
Τιμή
€ 335.000
Τιμή ανά m²
2.888 €/m²
Ενεργειακή απόδοση
  • Έτος κατασκευής

    2026
  • Κατάσταση

    Νεόδμητο / Υπό κατασκευή
  • Ενεργειακή πιστοποίηση

    Χωρίς ταξινόμηση
Ανακαλύψτε κάθε γωνιά του ακινήτου
+28
Πρόσθετες επιλογές

Επικοινώνησε με τον αγγελιοδότη

Ή