Τριάρι νέο, Petrčane - Kožino, Ζάδαρ

€ 267.840
3
83 m²
2
ΙΣ
Βεράντα

Σημείωση

Τελευταία ενημέρωση: 26/02/2026
Περιγραφή

This description has been translated automatically and may not be accurate

κωδικός: 5280

A modern, high-quality project is for sale, offering luxury and comfort for vacation and living in a unique, quiet location 600 m from the sea and a beautiful beach in Petrčane, not far from the city of Zadar.
This is a construction of a new, modern settlement in a sought-after location in Petrčane - 5 residential buildings, designed on 3 floors (GR + 2) with a roof terrace, and each has a total of 4 residential units. In the building's courtyard there is a garden and a courtyard where there is an outdoor parking lot, and two parking spaces are assigned to each apartment.
Construction is underway, and the completion of construction works is expected by summer 2026.
 
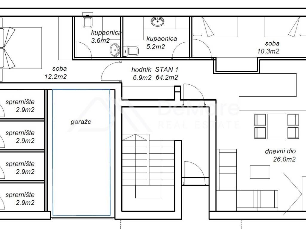
≅ GROUND FLOOR - S1: APARTMENT with two bedrooms and a garden
A beautiful, attractively located apartment, occupying most of the ground floor. A comfortable living room with kitchen and dining room, separated only by glass sliding walls from a spacious garden terrace.
The apartment consists of:
- Hall / 7.00 m2,
- Open space - living room with kitchen and dining room / 24.00 m2,
- Bathrooms / 5.20, m2
- Bathrooms / 3.60 m2,
- Bedrooms / 12.30 m2,
- Bedrooms / 12.10 m2,
- Terraces / 17.50 m2,
The interior living space occupies 64.20 m2.
This apartment also has a garden (90 m2), a storage room (3 m2) on the ground floor and two parking spaces in the building's yard (2 x 13.75 m2).
The total gross area of ​​the apartment is 202.20 m2, and the calculated value of the usable area of ​​the apartment with its accessories is 83.70 m2.
 
CHARACTERISTICS OF THE BUILDING:
≈ Thermal facade / Styrofoam 10 cm,
≈ Floor heating,
≈ Multi-split air conditioning system for heating and cooling in all rooms,
≈ Burglary and fireproof entrance door with sound insulation and silent locking,
≈ High-quality PVC joinery with three-layer IZO glass,
≈ Blinds with electric lifts and built-in mosquito nets,
≈ Luxury first-class ceramic floor coverings,
≈ Sanitary facilities of renowned manufacturers,
≈ First-class parquet floors and large-sized ceramics,
≈ Video intercom
 
!! ADVANTAGE when buying this property ⇒The investor is a reliable legal entity with many years of experience in construction, and is in the VAT system, so the buyer DOES NOT PAY real estate sales tax.
 
For any additional information and advice, feel free to contact us!
De Mare d.o.o.Tel: +385 23 300 400Mail: info@demare.hr
 
 
LOCATION:
The facility is located in an exceptional location in Petrčane, 600 m from the sea and a well-maintained beach, and nearby there are numerous facilities such as restaurants, coffee bars, shops.
Petrčane is a small tourist town in Zadar County in Croatia. It is located about 10 km north of Zadar, surrounded by long pebble beaches and a dense pine forest, which is why it is very recognizable. It is surrounded by two peninsulas - Punta Radman and Punta Skala and has about 600 permanent residents. The town exudes a family atmosphere thanks to the 2-kilometer-long beach that offers a variety of entertainment / recreational facilities, crystal clear sea, and a dense pine forest that provides thick shade during the summer heat.
Zadar Airport Zemunik is only 18.5 km away and is well connected to many European cities and destinations. The ferry port of Gaženica / Zadar is 13 km away, has lines with most islands, and during the summer season is a stop for numerous tourist cruisers.
Εάν θέλετε να μάθετε περισσότερα, μπορείτε να μιλήσετε με Marija Strenja.
Χαρακτηριστικά
Τύπος
Διαμέρισμα
Συμβόλαιο
Πώληση
Όροφος
Ισόγειο
Σύνολο ορόφων
2
Εμβαδόν
83 m²
Δωμάτια
3
Υπνοδωμάτια
2
Μπάνια
2
Βεράντα
Ναι
Γκαράζ, χώροι στάθμευσης
2 εξωτερικό
Θέρμανση
Αυτόνομη, θέρμανση αέρος, ρεύμα
Κλιματισμός
Αυτόνομη, κρύο/ζέστη
Απόσταση από τη θάλασσα
1 m
Άλλα χαρακτηριστικά
  • Μονός υαλοπίνακας/ Συνθετικά κουφώματα
  • Πόρτα ασφαλείας
Λεπτομέρεια επιφάνειας

Κατοικία

Όροφος
Ισόγειο
Εμβαδόν
83,7 m²
Συντελεστής
100%
Τύπος επιφάνειας
Κύρια
Συνολική επιφάνεια
83,7 m²
Πληροφορίες τιμής
Τιμή
€ 267.840
Τιμή ανά m²
3.227 €/m²
Λεπτομέρειες κόστους
Κοινόχρηστα
Χωρίς κοινόχρηστα έξοδα
Ενεργειακή απόδοση
  • Έτος κατασκευής

    2026
  • Κατάσταση

    Νεόδμητο / Υπό κατασκευή
  • Θέρμανση

    Αυτόνομη, θέρμανση αέρος, ρεύμα
  • Κλιματιστικό μηχάνημα

    Αυτόνομη, κρύο/ζέστη
Ανακαλύψτε κάθε γωνιά του ακινήτου
+22
Πρόσθετες επιλογές

Επικοινώνησε με τον αγγελιοδότη

Ή