map icon

Τεσσάρι Diklo, Zadar, Ζάδαρ

ΖάδαρDiklo, Zadar
€ 450.000
4
118 m²
2
ΙΣ
Όχι
Βεράντα

Σημείωση

Τελευταία ενημέρωση: 20/03/2026
Περιγραφή

This description has been translated automatically and may not be accurate

κωδικός: 5861

Apartments for sale in a residential building with a sea view, 150 m from the sea, Diklo - Zadar. Object "B" has a total of six residential units. The project is under construction. The planned completion is in July 2024. Each apartment has a storage room and two parking spaces. They have a sea view. The apartment on the second floor has a roof terrace.

Apartment B1 ground floor 118 m2 = €420,000
Apartment B2, first floor, 106 m2 = €480,000
Apartment B3 second floor/ PENTHOUSE with roof terrace 159 m2 = €650,000

The design of the entire building is modern and practical, high-quality materials and equipment are used during construction, so a thermal facade, air conditioners in every room, underfloor heating, electric blinds, mosquito nets for protection against insects, video intercom, security doors and video surveillance will be installed.

The distance from the beach is 150 m.

Provizija agencije za kupca iznosi 3% + PDV i plaća se u slučaju kupovine nekretnine kod zaključenja kupoprodajnog Ugovora.

ID CODE: 5861

Euro Immobilien d.o.o.
Mob: 00385 (0)99 444 0500
Tel: +385 51 220 024
E-mail: info@euro-immobilien.hr
www.euro-immobilien.hr
Χαρακτηριστικά
Τύπος
Διαμέρισμα
Συμβόλαιο
Πώληση
Όροφος
Ισόγειο
Ανελκυστήρας
Όχι
Εμβαδόν
118 m²
Δωμάτια
4
Υπνοδωμάτια
3
Μπάνια
2
Μπαλκόνι
Όχι
Βεράντα
Ναι
Γκαράζ, χώροι στάθμευσης
2 εξωτερικό
Θέρμανση
Αυτόνομη, θέρμανση αέρος
Κλιματισμός
Αυτόνομη, κρύο/ζέστη
Πληροφορίες τιμής
Τιμή
€ 450.000
Τιμή ανά m²
3.814 €/m²
Ενεργειακή απόδοση
  • Θέρμανση

    Αυτόνομη, θέρμανση αέρος
  • Κλιματιστικό μηχάνημα

    Αυτόνομη, κρύο/ζέστη
  • Ενεργειακή πιστοποίηση

    Χωρίς ταξινόμηση
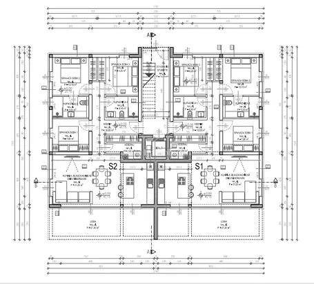
Σχέδιο ακινήτου
Ανακαλύψτε κάθε γωνιά του ακινήτου
+2
Πρόσθετες επιλογές

Επικοινώνησε με τον αγγελιοδότη

Ή