Οικοδομήσιμο οικόπεδο προς Πώληση

€ 135.000
725 m²

Σημείωση

Τελευταία ενημέρωση: 18/02/2026
Περιγραφή

κωδικός: IS1518886

Prodaju se dva jednaka građevinska zemljišta s ishodovanom građevinskom dozvolom Kanfanar, Istra

Na prodaju je građevinsko zemljište na rubu mirnog mjesta Kanfanar, udaljeno svega 3 km od izlaza s autoceste za Rovinj. Parcela se nalazi na mirnoj lokaciji, na samom rubu građevinskog područja, s pristupom asfaltiranoj cesti. Zemljište je ravno i ima izvrsnu geografsku poziciju sve točke u Istri dostupne su unutar 40 minuta vožnje, od sjevera do juga poluotoka.

Za parcelu je već izrađena projektna dokumentacija za izgradnju moderne vile s bazenom, a građevinska dozvola je izdana.
Gradnja se može započeti odmah!

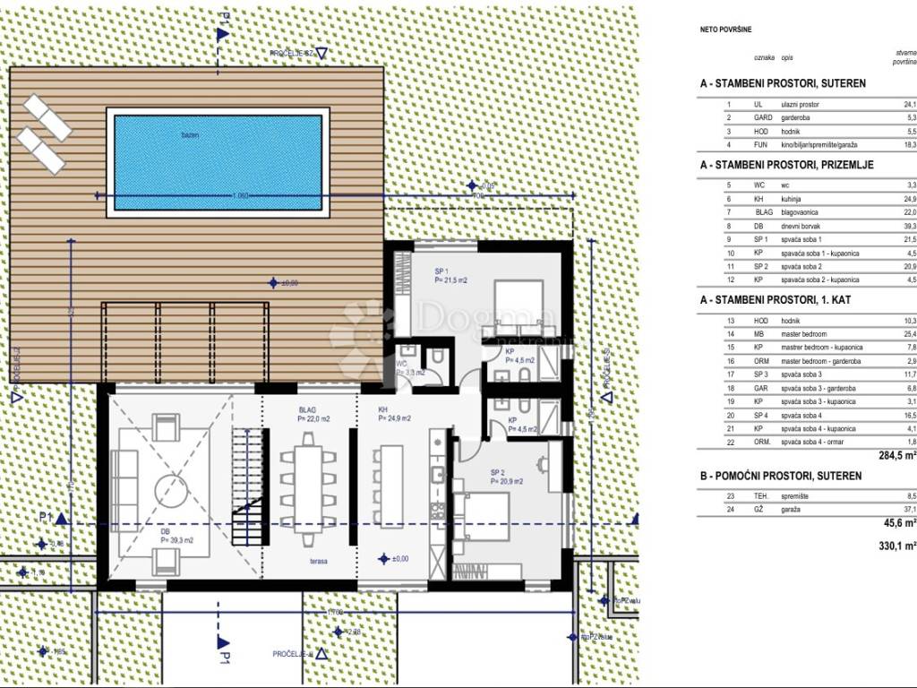
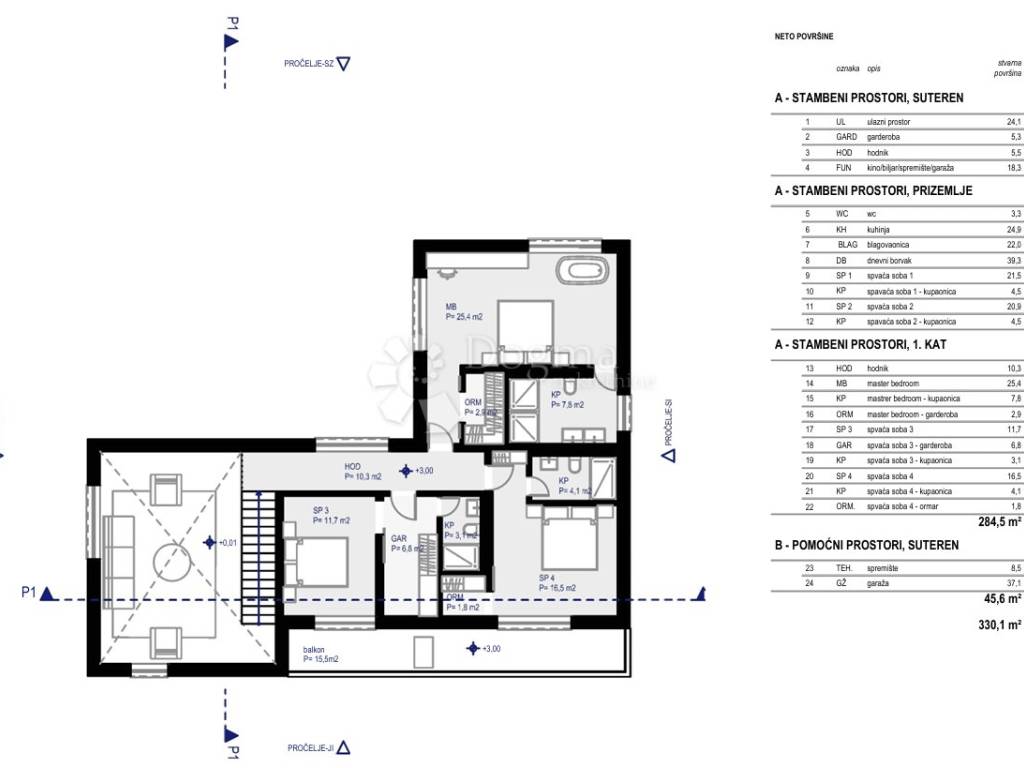
OPIS VILE: Samostojeća vila će se sastojat od suterena, prizemlja i prvog kata.

SUTEREN: Ulazni prostor 24,1 m, garderoba 5,3 m, hodnik 5,5 m, garaza 18,3 m.
PRIZEMLJE: WC 3,3 m, kuhinja 24,9 m, blagovaonica 22 m, dnevni boravak 39,3 m, dvije spavace sobe (21,5 m, 20,9 m) sa kupaoniicama 4,5 m.
PRVI KAT: Hodnik 10,3 m, master soba 25,4 m sa kupaonicom 7,8 m i garderobom 2,9 m, dvi prostrane spavaće sobe s kupaonicama 'en suite' i garderobom.

Naselje Kanfanar nudi mirnu i opuštenu atmosferu, daleko od vreve većih gradova. Izvrsno je mjesto za uživanje u prirodi, šetnju ili vožnju biciklom te doživjeti čari ruralne Istre. Kanfanar je poznat i po poljoprivrednim djelatnostima, posebice proizvodnji maslinovog ulja i vinogradarstvu. Plodno tlo i povoljna klima regije čine je pogodnom za uzgoj vinove loze i proizvodnju visokokvalitetnih vina. Posjetitelji mogu istražiti lokalne vinarije i kušati poznata istarska vina.

Za sve dodatne informacije ili dogovor oko razgledavanja, slobodno me kontaktirajte.

ILIJA RAČUNICA
Mob./Whatsapp: +385 91 4957 567
Email: ilija.racunica@dogma-nekretnine.com

ID KOD AGENCIJE: IS1518886

Ilija Računica
Asistent u posredovanju
Mob: 091/495-7567
Tel: 022/646-360, 022/646-361
E-mail: ilija.racunica@dogma-nekretnine.com
www.dogma-dalmacija.com
Εάν θέλετε να μάθετε περισσότερα, μπορείτε να μιλήσετε με Ilija Računica.
Χαρακτηριστικά
Συμβόλαιο
Πώληση
Τύπος
Οικοδομήσιμο οικόπεδο
Εμβαδόν
725 m²
Πληροφορίες τιμής
Τιμή
€ 135.000
Τιμή ανά m²
186 €/m²
Ανακαλύψτε κάθε γωνιά του ακινήτου
+7
Πρόσθετες επιλογές

Επικοινώνησε με τον αγγελιοδότη

Ή