Οικοδομήσιμο οικόπεδο προς Πώληση

€ 100.000
500 m²

Σημείωση

Τελευταία ενημέρωση: 22/01/2026
Περιγραφή

κωδικός: IS1517745

KANFANAR, ISTRA - idealna parcela za obiteljsku kuću u blizini centra Kanfanara.

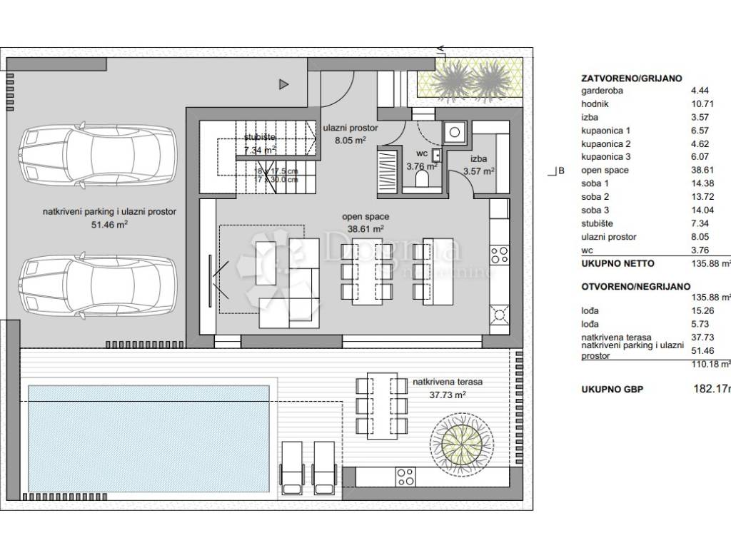
Prodajemo parcelu od 500 m sa građevinskom dozvolom za kuću Prizemlje + 1 kat od ukupno 188,95 m.
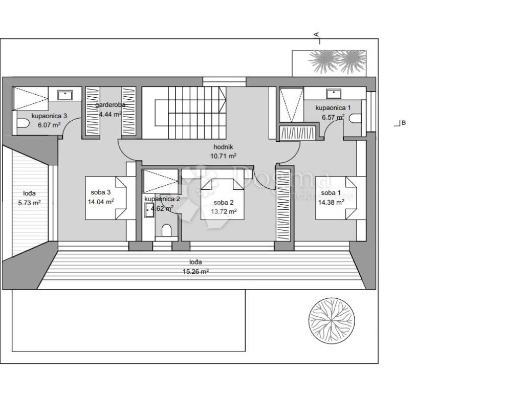
Kuća po projektu ima 3 spavaće sobe svaka sa svojom kupaonicom na 1. katu te dnevnim boravkom sa izlazom na bazen i natkrivenu terasu u prizemlju.
Po projektu ima 2 natkrivena parkirna mjesta i još 2 nenatkrivena parkirna mjesta na samom ulazu u dvorište.
Parcela je pravilnog oblika, okružena obiteljskim kućama i dodatnim parcelama za gradnju, čineći dio naselja obiteljskih kuća i kuća za odmor.

Građevinski dio zemljišta nalazi se unutar građevinske zone, stambene (S) namjene, gdje je dozvoljena gradnja podruma + prizemlje + 1. kat.

Dodatan benefit je infrastruktura koja prolazi uz rub parcele, struja, voda i telefon, a pristup je makadamski put u dužini od oko 100 metara te slijepa ulica bez prometa.
Mjesto i mikro lokacija su doista mirni te idealni za obiteljski tip života.

Zemljište ima kompletnu dokumentaciju:
- Geodetski elaborat i podloga
- Građevinska dozvola.
- Analiza zemljišta, prostorno planske dokumentacije i mogućnosti gradnje
- Vlasništvo 1/1, bez tereta.

Zemljište je u vlasništvu firme u sustavu PDV-a, što znači da je kupac oslobođen plaćanja poreza.
Cijena je sa uključenim PDV-om.

ID KOD AGENCIJE: IS1517745

Gianna Brženda - DOGMA PULA
Poslovna tajnica
Tel: 052/645 444
E-mail: pula2@dogma-istra.com
www.dogma-nekretnine.com
Εάν θέλετε να μάθετε περισσότερα, μπορείτε να μιλήσετε με Gianna Brženda - DOGMA PULA.
Χαρακτηριστικά
Συμβόλαιο
Πώληση
Τύπος
Οικοδομήσιμο οικόπεδο
Εμβαδόν
500 m²
Πληροφορίες τιμής
Τιμή
€ 100.000
Τιμή ανά m²
200 €/m²
Ανακαλύψτε κάθε γωνιά του ακινήτου
+13
Πρόσθετες επιλογές

Επικοινώνησε με τον αγγελιοδότη

Ή