Δυάρι νέο, ισόγειο, Šibenik

€ 249.000
2
55 m²
1
ΙΣ

Σημείωση

Τελευταία ενημέρωση: 19/11/2025
Περιγραφή

This description has been translated automatically and may not be accurate

κωδικός: DA100065026



In an exceptional location in Šibenik-Bilice, between Split and Zadar airports, four luxury apartments are for sale in a modern residential building.

The apartment building was developed for year-round use in accordance with the principles of sustainable tourism.

The individual components comply with the most modern construction techniques and promote well-being in every season.

The entire property will be equipped with underfloor heating via a heat pump and solar thermal energy for hot water production.

A 30 kW solar system will also be installed for the property's own power supply.

Two charging stations for electric vehicles are also planned.

In addition to a large indoor pool, which can be fully opened in the summer, two saunas and a fitness center are also planned.

The entire resort also features a tennis court and table tennis courts to round out the range of sporting activities.

This exclusive property is located in the immediate vicinity of a new marina with up to 150 berths. Plans include the construction of a golf course, a luxury five-star hotel, and several restaurants. This makes this location a perfect combination of prestige, comfort, and beautiful nature.

The building in which the apartments are located offers its tenants maximum comfort rarely found in residential projects an indoor pool, a modern spa center with sauna, a gym, and a tennis court are available for communal use.

Each apartment also has its own parking space.

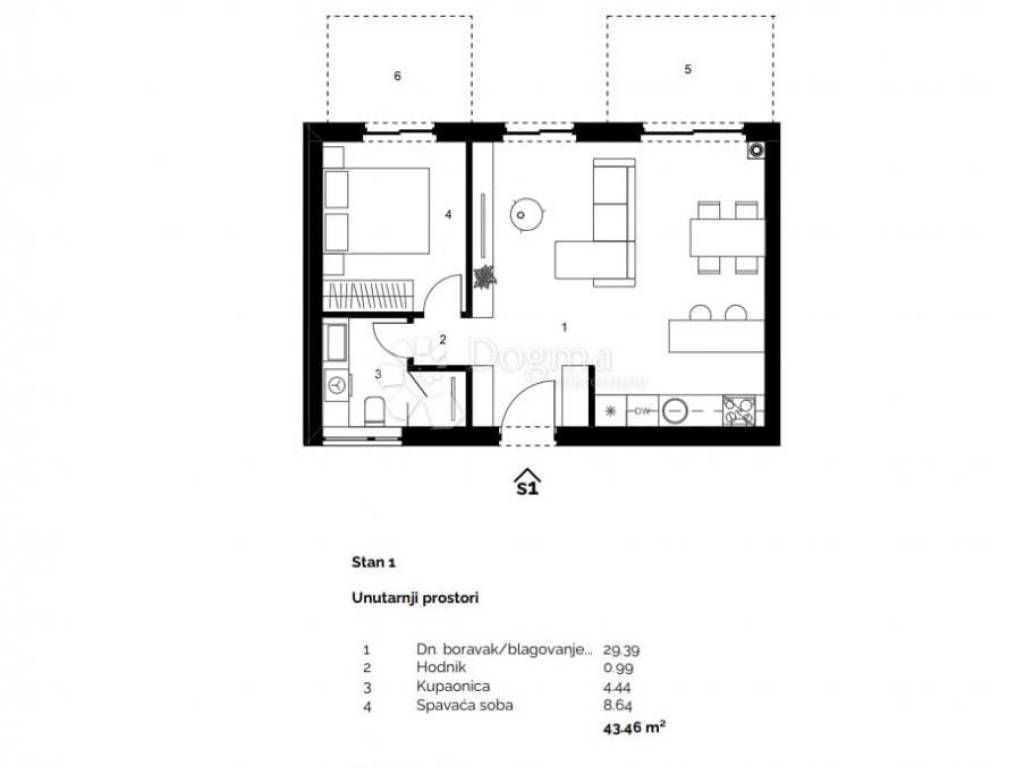
The 55.07 m ground floor apartment S2 consists of a spacious open-plan living room with a kitchen and dining room, opening onto a covered terrace an ideal place to enjoy. The bedroom also has access to a terrace.

The bathroom is modernly furnished and equipped with high-quality sanitary facilities.

The entire apartment is beautifully designed and ideal for year-round living or tourist rental.

This property combines Mediterranean charm, luxury, and a prime location, representing an exceptional investment opportunity.

If you are looking for peace and quality of life, this is the ideal opportunity for you.

For further information and to arrange a viewing, please contact us.

Josipa Vrcić

+385 95 901 4869

josipa.vrcic@dogma-nekretnine.com

Draženka Blazinarić

+385 91 796 2322

drazenka.blazinaric@dogma-nekretnine.com

ID CODE: DA100065026

Draženka Blazinarić
Asistent u posredovanju
Mob: 091/796-2322
Tel: 022/646-360, 022/646-361
E-mail: drazenka.blazinaric@dogma-nekretnine.com
www.dogma-dalmacija.com

Josipa Vrcić
Asistent u posredovanju
Mob: 095/901-4869
Tel: 022/646-360, 022/646-361
E-mail: josipa.vrcic@dogma-nekretnine.com
www.dogma-dalmacija.com
Εάν θέλετε να μάθετε περισσότερα, μπορείτε να μιλήσετε με Draženka Blazinarić.
Χαρακτηριστικά
Τύπος
Διαμέρισμα
Συμβόλαιο
Πώληση
Όροφος
Ισόγειο
Εμβαδόν
55 m²
Δωμάτια
2
Υπνοδωμάτια
1
Μπάνια
1
Μπαλκόνι
Όχι
Βεράντα
Όχι
Πληροφορίες τιμής
Τιμή
€ 249.000
Τιμή ανά m²
4.527 €/m²
Ενεργειακή απόδοση
  • Έτος κατασκευής

    2025
  • Κατάσταση

    Νεόδμητο / Υπό κατασκευή
  • Ενεργειακή πιστοποίηση

    Δεν υπόκειται
Ανακαλύψτε κάθε γωνιά του ακινήτου
+4
Πρόσθετες επιλογές

Επικοινώνησε με τον αγγελιοδότη

Ή