Οικοδομήσιμο οικόπεδο προς Πώληση

€ 95.000
400 m²

Σημείωση

Τελευταία ενημέρωση: 04/03/2026
Περιγραφή

κωδικός: IS1516528

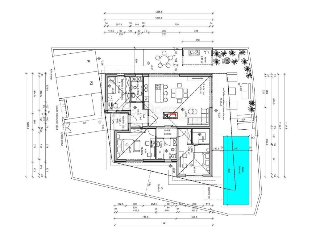
Na kraju pitomog sela nedaleko Kanfanara smještena je građevinska parcela s pravomoćnom dozvolom za gradnju prizemne kuće veličine 105 m. Kuća je koncipirana kao nekretnina s dvije spavaće sobe, kupaonicom, kuhinjom, blagovaonicom i dnevnim boravkom otvorenog tipa, radnom sobom ili spremištem po izboru, vešerajem s toaletom i dva hodnika.
Okućnica sadrži bazen od 24 m, vrtni roštilj s prostorom za 'dining al fresko' i nekoliko parkirnih mjesta.

Gradnja kuće je započeta s betoniranom školjkom bazena i temeljima kuće.

Parcela je od Rovinja udaljena 20 km a katastarski i upravno pripada općini Žminj.

Za razgled i više detalja te savjet pri kupnji, prodaji i najmu nekretnina kontakt

SELMA BAŠIĆ
Agent s licencom
GSM: +385 98 9658170
selma.basic@dogma-nekretnine.com

ID KOD AGENCIJE: IS1516528

Selma Bašić - Rovinj
Agent s licencom
Mob: 098/965-8170
Tel: 052/639-276
E-mail: selma.basic@dogma-nekretnine.com
www.dogma-nekretnine.com
Εάν θέλετε να μάθετε περισσότερα, μπορείτε να μιλήσετε με Selma Bašić - Rovinj.
Χαρακτηριστικά
Συμβόλαιο
Πώληση
Τύπος
Οικοδομήσιμο οικόπεδο
Εμβαδόν
400 m²
Πληροφορίες τιμής
Τιμή
€ 95.000
Τιμή ανά m²
238 €/m²
Ανακαλύψτε κάθε γωνιά του ακινήτου
+10
Πρόσθετες επιλογές

Επικοινώνησε με τον αγγελιοδότη

Ή