Οικοδομήσιμο οικόπεδο προς Πώληση

€ 100.926
801 m²

Σημείωση

Τελευταία ενημέρωση: 12/05/2026
Περιγραφή

κωδικός: IS1515992

SAMO U NAŠOJ PONUDI!

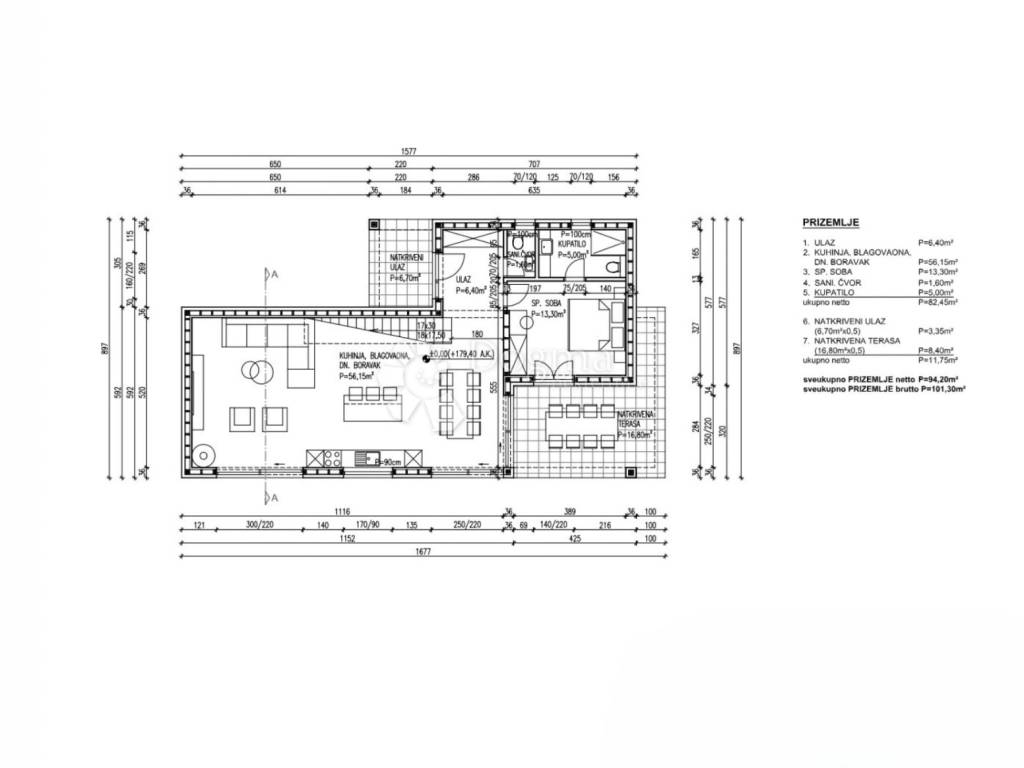
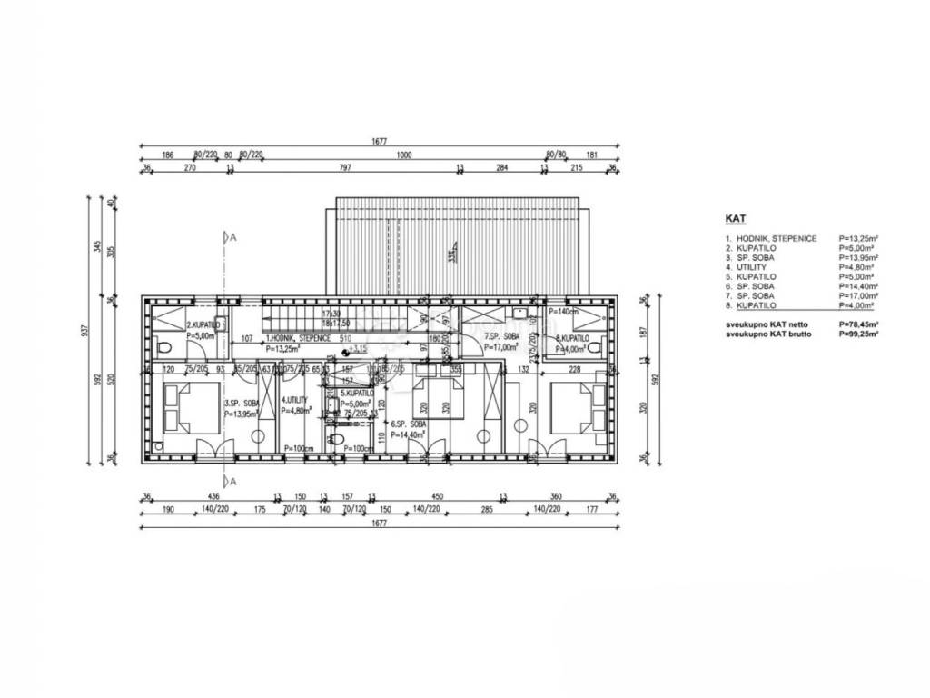
Prodaje se građevinsko zemljište s izdanom građevinskom dozvolom za izgradnju moderne montažne kuće ukupne površine 172,65 m. Kuća je projektirana kao katnica te ima izrađen idejni projekt.

U prizemlju kuće predviđena je funkcionalna kuhinja povezana s blagovaonicom i dnevnim boravkom, s direktnim izlazom na natkrivenu terasu idealnu za boravak na otvorenom. U prizemlju se također nalazi gostinjski toalet i prostrana spavaća soba s vlastitom kupaonicom.

Na katu su planirane tri udobne spavaće sobe, svaka s vlastitom kupaonicom, te utility prostor (praonica) za maksimalnu praktičnost.

Zemljište je opremljeno plaćenim priključkom za struju, a zahtjev za priključak vode je već podnesen. Nalazi se u izuzetno povoljnoj lokaciji, svega 5 minuta vožnje do najbliže plaže, restorana i trgovine, dok je centar Labina udaljen 10-ak minuta. Aerodrom u Puli dostupan je za manje od 40 minuta vožnje.

Ova nekretnina predstavlja izvrsnu priliku za gradnju obiteljske kuće ili kuće za odmor u mirnom, ali pristupačnom okruženju.

ID KOD AGENCIJE: IS1515992

Lorena Kogej
Agent s licencom
Mob: 091/738-7200
Tel: 052/639-276
E-mail: lorena.kogej@dogma-nekretnine.com
www.dogma-nekretnine.com
Εάν θέλετε να μάθετε περισσότερα, μπορείτε να μιλήσετε με Lorena Kogej.
Χαρακτηριστικά
Συμβόλαιο
Πώληση
Τύπος
Οικοδομήσιμο οικόπεδο
Εμβαδόν
801 m²
Πληροφορίες τιμής
Τιμή
€ 100.926
Τιμή ανά m²
126 €/m²
Ανακαλύψτε κάθε γωνιά του ακινήτου
+21
Πρόσθετες επιλογές

Επικοινώνησε με τον αγγελιοδότη

Ή