Οικοδομήσιμο οικόπεδο προς Πώληση

€ 119.000
1.031 m²

Σημείωση

Τελευταία ενημέρωση: 16/03/2026
Περιγραφή

κωδικός: IS1514042

LABIN

Labin se nalazi se na istočnoj obali istarskog poluotoka, s pogledom na Jadransko more. Grad ima bogatu povijest, a poznat je po dobro očuvanom srednjovjekovnom starom gradu koji se smjestio na brežuljku.
Labin je također poznat po svojoj kulturnoj i umjetničkoj baštini, s galerijama, studijima i muzejima koji izlažu domaće i strane umjetnike. Grad ima živahnu kulturnu scenu, s raznim događanjima i festivalima tijekom cijele godine.

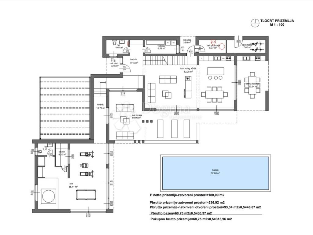
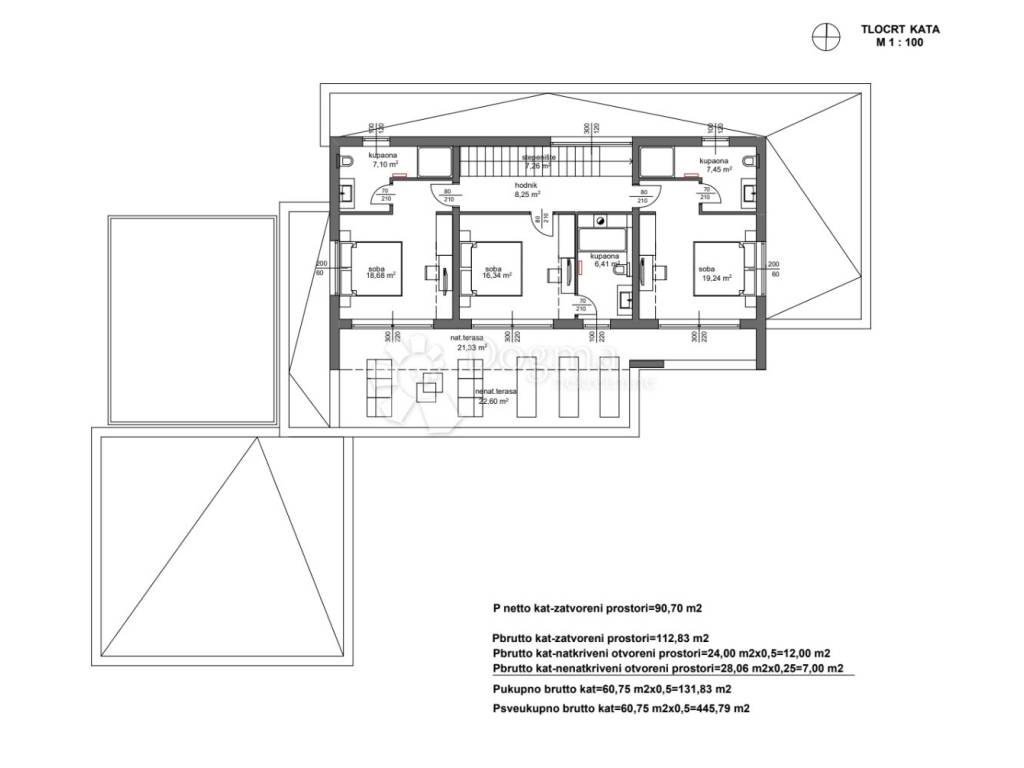
U okolici Labina na svega 10 km nalazi se prekrasno zemljište pravilnog oblika. Izrađen je kompletan projekt za vilu od 5 zvijezdica, sa autohtonim istraskim elementima uklopljenih u savršenu kombinaciju modernog dizajna.

Objekt iznosi 350 m2 stambene zatvorene površine, raspodijeljene na prizemlje i kat. Sastoji se od 3 spavaće sobe i 3 kupaonice, kuhinje sa blagovaonom i dnevnim boravkom, Wellness & spa zone (jacuzzy, sauna, gym) 2 toaleta, vešeraja, spremišta, ljetne kuhinje i natkrivene terase.

Predviđen je bazen od 60 m2 sa ugradbenim pokrivalom na struju.

Dodatna oprema:
Kamin, dvije dizalice topline (za podno grijanje i bazen), klima inverteri, solarni paneli za toplu vodu, rekuperatori CO2, zatim 3 parkinga sa utičnicama za punjače za električne automobile.

Prednosti lokacije objekta:
- otvorena i osunčana južna strana
- zadnje građevinskom zemljište (ispred se nalazi 1.1 ha državnog zemljišta)
- mediteranska klima
- prava oaza mira okužena vinogradima
- blizina Rapca (poznate turističke destinacije)
- mirno i tradicionalno mjesto sa školom, dućanom, nogometnim igralištem, restoranom sa domaćom istarskom hranom
- okruženo sa modernim kućama za odmor, borovom šumom i pašnjacima za koze (simbol Istre)

Prodaje se projekt sa građevinskom dozvolom i plaćenim komunalijama za opisani objekt!

Za dodatne informacije stoji Vam na raspolaganju:

ID KOD AGENCIJE: IS1514042

Lorena Kogej
Agent s licencom
Mob: 091/738-7200
Tel: 052/639-276
E-mail: lorena.kogej@dogma-nekretnine.com
www.dogma-nekretnine.com
Εάν θέλετε να μάθετε περισσότερα, μπορείτε να μιλήσετε με Lorena Kogej.
Χαρακτηριστικά
Συμβόλαιο
Πώληση
Τύπος
Οικοδομήσιμο οικόπεδο
Εμβαδόν
1.031 m²
Πληροφορίες τιμής
Τιμή
€ 119.000
Τιμή ανά m²
115 €/m²
Ανακαλύψτε κάθε γωνιά του ακινήτου
+12
Πρόσθετες επιλογές

Επικοινώνησε με τον αγγελιοδότη

Ή