Τριάρι νέο, πρώτος όροφος, Sveti Filip i Jakov

€ 414.464
3
1
1
Όχι
Βεράντα

Σημείωση

Τελευταία ενημέρωση: 05/12/2025
Περιγραφή

This description has been translated automatically and may not be accurate

κωδικός: RE55676

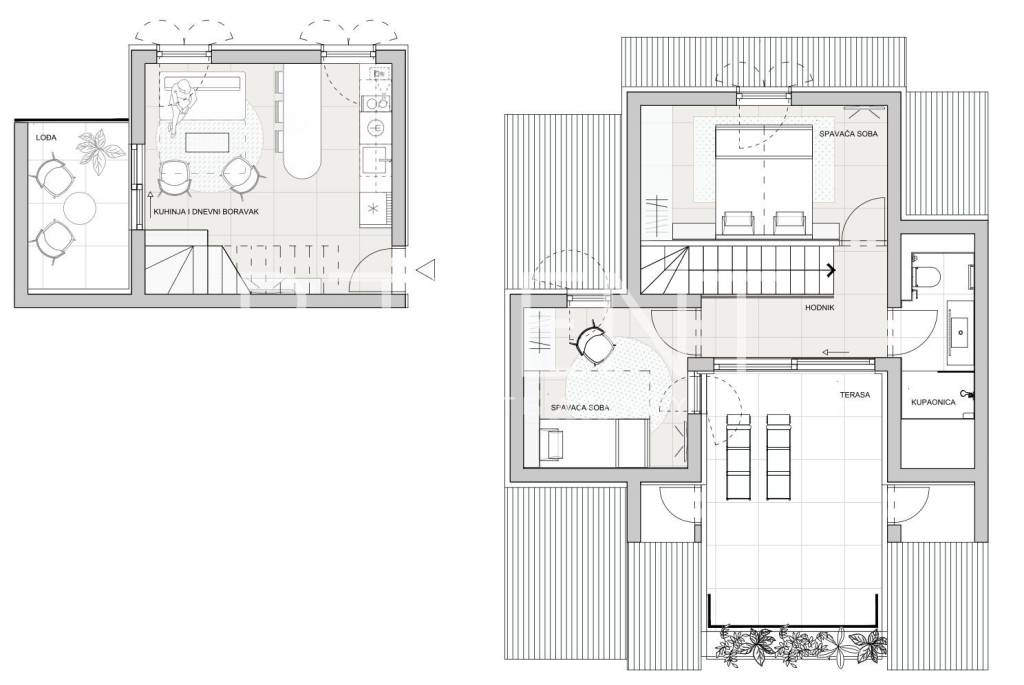
In the heart of Dalmatia, near Zadar, on the very coast of the picturesque town of Sv. Filip i Jakov is located a 5-star complex consisting of a hotel and six buildings with 60 residences. It intertwines everything needed for an ideal family vacation - from a wellness and SPA zone, fitness center, restaurants, bars, children's playroom, playground, swimming pool and landscaped beach in front of the resort, to a new marina in the immediate vicinity. Molum Hotel & Residences is characterized by a combination of modern architecture and a refined ambiance, characteristic of authentic locations and inspiring nature, careful details and charming features that create unforgettable memories and provide insight into a completely different way of life. The resort houses a two-story residence of type A, which is located on the 1st floor and consists of: two bedrooms, a bathroom, a living room with a kitchen and dining room, and a loggia with a terrace. The residence has a total closed living area of 54.28 m2, with a loggia and terrace totaling 66.85 m2. All residences are designed according to the highest standards of quality and functionality, and are characterized by a minimalistic design inspired by the influences of Adriatic motifs - rock, forest, olive grove, movements of sea waves and wind. They are equipped with top equipment and technologies, in the service of impeccable service and unforgettable emotions. The construction works and the arrangement of the entire tourist resort are currently in progress. The completion of the works and the opening of the settlement is scheduled for July 1, 2024. All residences are designed according to the highest standards of quality and functionality, and are characterized by a modern design. They are equipped with top equipment and technologies. Molum Hotel & Residences is characterized by a combination of authentic locations and inspiring nature, careful details and charming features that create unforgettable memories and provide insight into a completely different way of life. For all other information, feel free to contact us!
Χαρακτηριστικά
Τύπος
Διαμέρισμα
Συμβόλαιο
Πώληση
Όροφος
1 όροφος
Σύνολο ορόφων
2
Ανελκυστήρας
Όχι
Δωμάτια
3
Υπνοδωμάτια
2
Μπάνια
1
Βεράντα
Ναι
Γκαράζ, χώροι στάθμευσης
1 εξωτερικό
Θέρμανση
Κεντρική, θερμαντικά σώματα, τροφοδοσία υγραέριο
Άλλα χαρακτηριστικά
  • Πισίνα
Πληροφορίες τιμής
Τιμή
€ 414.464
Ενεργειακή απόδοση
  • Έτος κατασκευής

    2024
  • Κατάσταση

    Νεόδμητο / Υπό κατασκευή
  • Θέρμανση

    Κεντρική, θερμαντικά σώματα, τροφοδοσία υγραέριο
  • Ενεργειακή πιστοποίηση

    Δεν υπόκειται
Σχέδιο ακινήτου
Ανακαλύψτε κάθε γωνιά του ακινήτου
+19
Πρόσθετες επιλογές

Επικοινώνησε με τον αγγελιοδότη

Ή