New build Multi-family detached houses in Zagreb

€ 373,850 - € 409,400
3
from 149 m²
4

Note

Listing updated on 12/03/2025
Description

This description has been translated automatically and may not be accurate

reference: EK-1020933

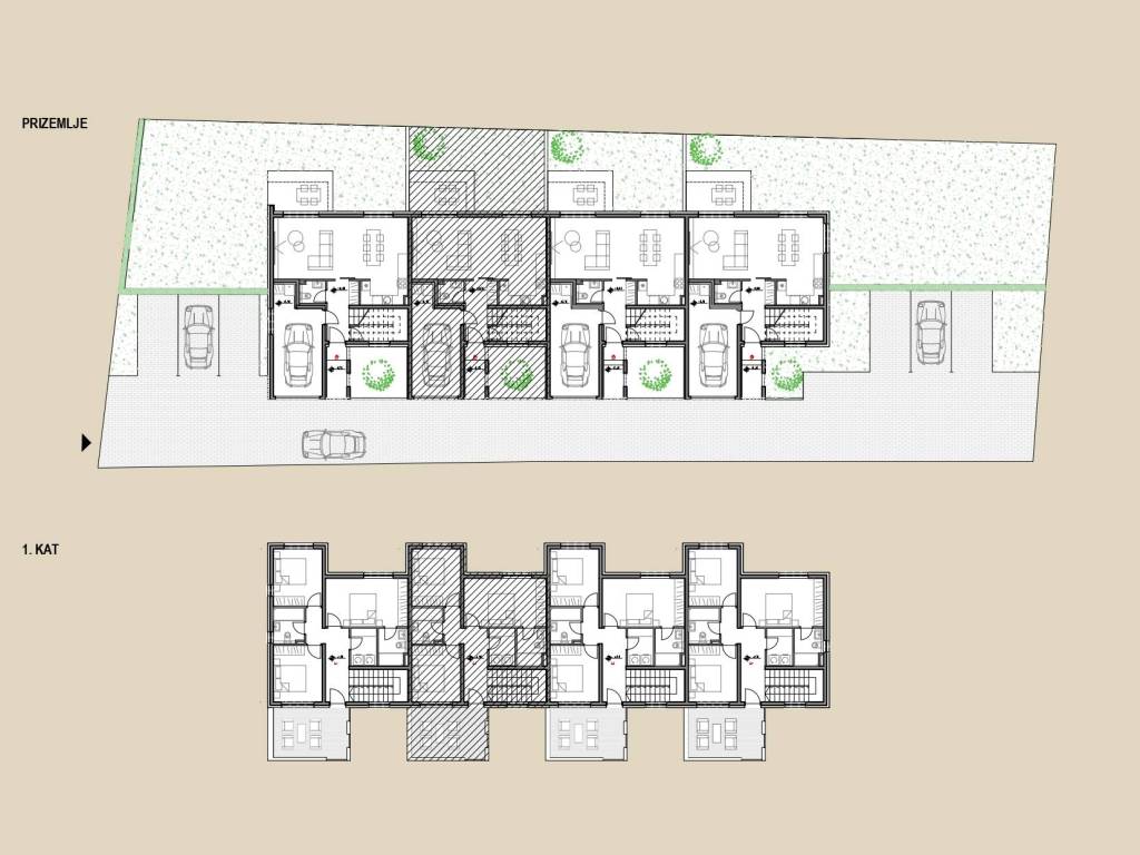
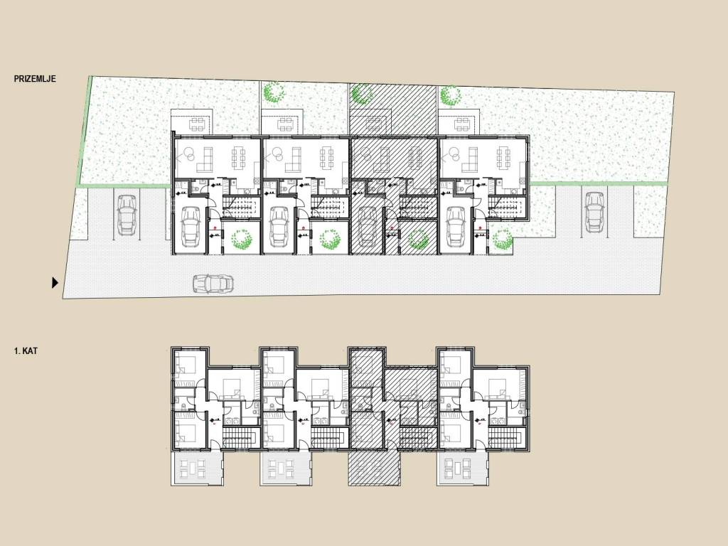
The planned building is for residential purposes. It consists of 4 independent residential units located on 2 above-ground floors.
In addition to the residential units, 4 garages are planned within the units on the ground floor.
Organizationally, each residential unit consists of a ground floor and a 1st floor.
The clear height of the ground floor is 3.10 m. The clear height of the first floor is 3.00 m.

FLOOR HEATING
Each connection of an individual underfloor heating circuit on the return manifold is equipped with a temperature meter, which enables the regulation of each underfloor heating circuit by adjusting the water flow of the underfloor heating system. The flow of hot water in
each individual underfloor heating circuit is defined in the calculation.
Each connection of an individual circuit on the supply manifold is equipped with a thermostatic valve with a manual regulation cap, which will be replaced with a thermoelectric drive. With the electrothermal drive, pre-regulation is ensured in accordance with the signal from the room thermostat. The number of distributor circuits depends on the number of underfloor heating circuits. The distributor will be placed in a cabinet designed for concealed installation. The distributor should be equipped with main taps on the supply and return lines, with plugs, with thermometers and with manual air vent and drain valves. For the needs of cooling the space, a split air conditioning system in the form of an air-to-air heat pump will be installed in the building. The mechanical installations are intended to maintain the following microclimate conditions in the rooms: The transport of the refrigerant from the outdoor unit to the indoor units will be carried out using factory-insulated copper pipes in coils. The installation of the condensate drain from the indoor air conditioning units will be carried out from PP pipes connected to the wall siphon, and then into the drain of the building.

OUTDOOR AIR CONDITIONING UNIT
The outdoor unit of the split system is intended for outdoor installation - protected from weather influences, with a built-in inverter compressor, air-cooled condenser and all necessary elements for protection, control and regulation
of the device and functional operation.

INDOOR AIR CONDITIONING UNIT
Internal units wall versions with a mask are equipped with a fan, a three-speed electric motor, a heat exchanger with direct expansion of freon, and all the necessary elements for protection, control and regulation of the device and temperature. The titanium apatite photocatalytic air purification filter removes microscopic dust particles in the air, powerfully removes unpleasant odors and helps prevent the growth of bacteria, viruses and microbes by ensuring a constant flow of clean air. The indoor wall units of the air conditioners are equipped with IR wireless controls.

HEATING THE BATHROOMS
Electric radiators are installed in the bathrooms to assist with the hot water underfloor heating.

SELECTING THE HEAT PUMP
The heat source for heating the building will be an air/water heat pump. The low-temperature reversible air/water heat pump, for split mono-energy systems, operates up to low outdoor temperatures, at reduced capacity. This ensures sufficient operation of the heat pump for the coldest climate conditions. The outdoor units of the heat pump will be installed on the flat roof of the building, while the indoor units will be installed inside the building, in the space provided for the heating equipment. The connection between the indoor and outdoor units is made using pre-insulated copper pipes with R32 refrigerant.

CARPENTERSHIP AND METALWORK
External windows will be made with PVC profiles with a thermal break, with triple low-E insulated glass filled with thermally inert gas, two glasses coated with a low-E coating, thickness ≥ 4+14+4+14+4 mm. Roller shutters will be used for summer sun protection. They will be electric on the ground floor and ordinary on the first floor.
External balcony doors (glass walls) will be made with PVC profiles with a thermal break, with triple low-E insulated glass filled with thermally inert gas, two glasses coated with a low-E coating, thickness ≥ 4+14+4+14+4 mm.

The terraced houses are located in Rakitje, 7 km from the center of Zagreb. There are beautiful lakes nearby, as well as other necessary amenities: shops, kindergarten, school... The location is ideal because it is well connected to the surrounding area, and the individual can enjoy the greenery and peace.
If you want to know more, you can talk to Ivan Bošković.
Features
Type
Project
Contract
Sale
Unit
4 residential, 4 commercial
Start and end date
05/05/2025 - 12/20/2026
Building floors
1
Rooms
3
Garage, car parking
4 in garage/box, 4 parking space
Heating
Central, floor heating, powered by heat pump
Air conditioning
Central, cold/hot
Other features
  • Window frames in triple glass / PVC
Work progress
Gradnja je započeta.
Energy efficiency

Energy consumption

≥ 250 kWh/m² yearA

Discover every corner of the property
+8
Additional options

Contact the advertiser