Single-family detached house 105 m², new, Vodice

€ 399,000
3
105 m²
2
Terrace

Note

Listing updated on 02/07/2026
Description

reference: K2222

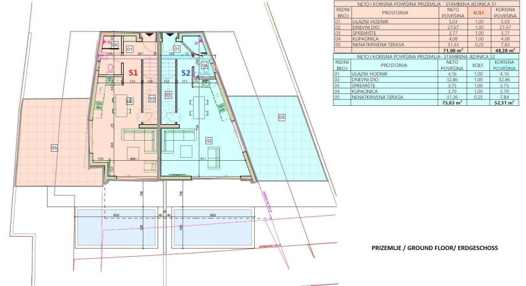
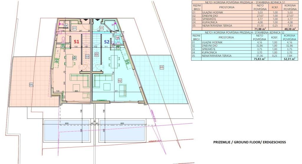
Vodice-**NOVOGRADNJA** prodaje se S1 i S2 dvojna kuća s bazenom na mirnoj lokaciji. Kuća modernog dizajna ima dvije etaže: prizemlje +kat. Trenutačno se gradi i bit će opremljena prema posljednjim standardima gradnje: Pvc stolarija s ALU roletama s električnim podizačima, klima uređaji u spavaćim sobama i dnevnom boravku, podno grijanje u kupaonicama i dnevnom boravku Svakoj kući pripada odgovarajući dio vrta, dva parkirna mjesta i bazen. Planirani rok završetka gradnje je kraj 2026. godine. Nalazi se na mirnoj lokaciji, od centra je udaljena oko 700 m a od najbliže plaže 850 m2.

S2 kuća ima ukupnu korisnu vrijednost stambene površine 105.10 m2 i sastoji se od prizemlja i kata. Prizemlje ima površinu 52.31 m2 i sadrži ulazni prostor, kupaonicu, spremište te kuhinju s blagovaonicom i dnevni boravak open space koncepta s izlazom na terasu površine 31,36 m2, vrt i bazen površine 18m2.Unutarnjim stubištem ide se na kat kuće površine 52,79 m2 koji se sastoji od hodnika, kupaonice, tri spavaće sobe i natkrivene terase površine 15,66m2.



S1 kuća ima ukupnu korisnu vrijednost stambene površine 95.63 m2 i sastoji se od prizemlja i kata. Prizemlje ima površinu 48,38 m2 i sadrži ulazni prostor, kupaonicu, spremište te kuhinja s blagovaonicom i dnevni boravak open space koncepta s izlazom na terasu površine 31,33 m2 vrt i bazen površine 18m2.Unutarnjim stubištem ide se na kat kuće površine 47,25 m2 koji se sastoji od hodnika, kupaonice, tri spavaće sobe i natkrivene terase površine 11,55m2.

Agencijska provizija iznosi 3% s PDV-om

Agencijska provizija iznosi 3% s PDV-om
Features
Type
Single-family detached house | Full ownership | Medium property class
Contract
Sale
Floor
2
Surface
105 m²
Rooms
3
Bedrooms
3
Bathrooms
2
Balcony
No
Terrace
Yes
Heating
Independent, with radiators, power supply
Air conditioning
Independent, cold/hot
Distance from the sea
800 m
Other features
  • External exposure
  • Private and shared garden
  • Pool
Surface detail

Residential

Floor
2
Surface
105.0 m²
Coefficient
100%
Surface type
Main
Commercial area
105.0 m²
Price information
Price
€ 399,000
Price per m²
3,800 €/m²
Energy efficiency

Energy consumption

≥ 250 kWh/m² yearA

Floorplan
Discover every corner of the property
+12
Additional options

Contact the advertiser

Or