

Note
This description has been translated automatically by Google Translate and may not be accurate
reference: 126
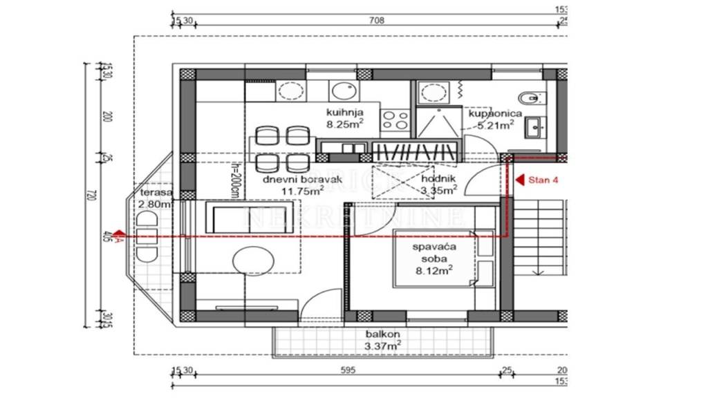
Flat Remete, Maksimir, 38m2
Year of construction
2024Heating
Independent, air heatingAir conditioner
Independent, cold/hotEnergy certification
Not classifiable