map icon

4-room flat new, second floor, Povljana

Povljana
€ 459,000
4
179 m²
2
2
No
Balcony
Terrace

Note

Listing updated on 11/11/2025
Description

This description has been translated automatically and may not be accurate

reference: s463

www.euroestate-nekretnine.hr (ID: s463)

THE BUYER DOES NOT PAY THE BROKERAGE COMMISSION WHEN PURCHASING REAL ESTATE FROM OUR OFFER.

NEW CONSTRUCTION, BUILDING WITH EIGHT APARTMENTS, 180 METERS FROM THE SEA.

An excellent four-room two-story apartment on the second floor of the building with a balcony, terrace and one parking space in the courtyard of the building in Povljana is for sale, with a total gross area of ​​179.13 m2 and a net usable area of ​​131.88 m2.

- the apartment is suitable for permanent residence, for temporary stay or for renting,
- the building is only 180 meters from the sea, near restaurants, shops, a promenade and tennis courts,
- the apartment has a spacious covered balcony of 30.31 m2 and a spacious uncovered terrace on the gallery of 30.31 m2,
- in a modern building under construction, the planned completion of construction is June 2025,
- proper ownership, without encumbrances and without obstacles for transfer to the buyer,
- the real estate is in the VAT system, the buyer does not pay real estate sales tax,

METHOD OF CONSTRUCTION AND EQUIPMENT:

- the building is reinforced concrete with a 10-centimeter-thick thermal insulation facade,
- quality ceramics and sanitary ware,
- external PVC / ALU carpentry with three-layer insulating glass, shutters with electric motors and mosquito nets,
- the entrance door of the apartment is burglar-proof and fire-proof,
- fully air-conditioned (cooling and heating), energy class A,
- TV and satellite connections in the rooms,
- fenced yard of the building.

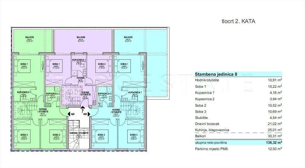
APARTMENT PREMISES: see attached floor plan (APARTMENT 8, light blue floor plan) and list of rooms with areas

1ST FLOOR: hallway, three bedrooms, two bathrooms, staircase, balcony
2ND FLOOR: staircase, kitchen / dining room / living room, terrace

FOR MORE INFORMATION ABOUT THE PROPERTY AND TO VIEW IT, CALL US ON 098 652 059 or CONTACT US BY EMAIL, THANK YOU!
When inspecting the property, potential buyers are not charged any costs.
Features
Type
Apartment
Contract
Sale | Income property
Floor
2 floor
Building floors
3
Lift
No
Surface
179 m²
Rooms
4
Bedrooms
3
Kitchen
Kitchen diner
Bathrooms
2
Furnished
No
Balcony
Yes
Terrace
Yes
Garage, car parking
1 parking space
Heating
Central, power supply
Air conditioning
Independent, cold/hot
Other features
  • External exposure
  • Security door
  • TV system with satellite dish
  • Window frames in triple glass / metal
Price information
Price
€ 459,000
Price per m²
2,564 €/m²
Energy efficiency

Energy consumption

A

Discover every corner of the property
+5
Additional options

Contact the advertiser

Or