1/47


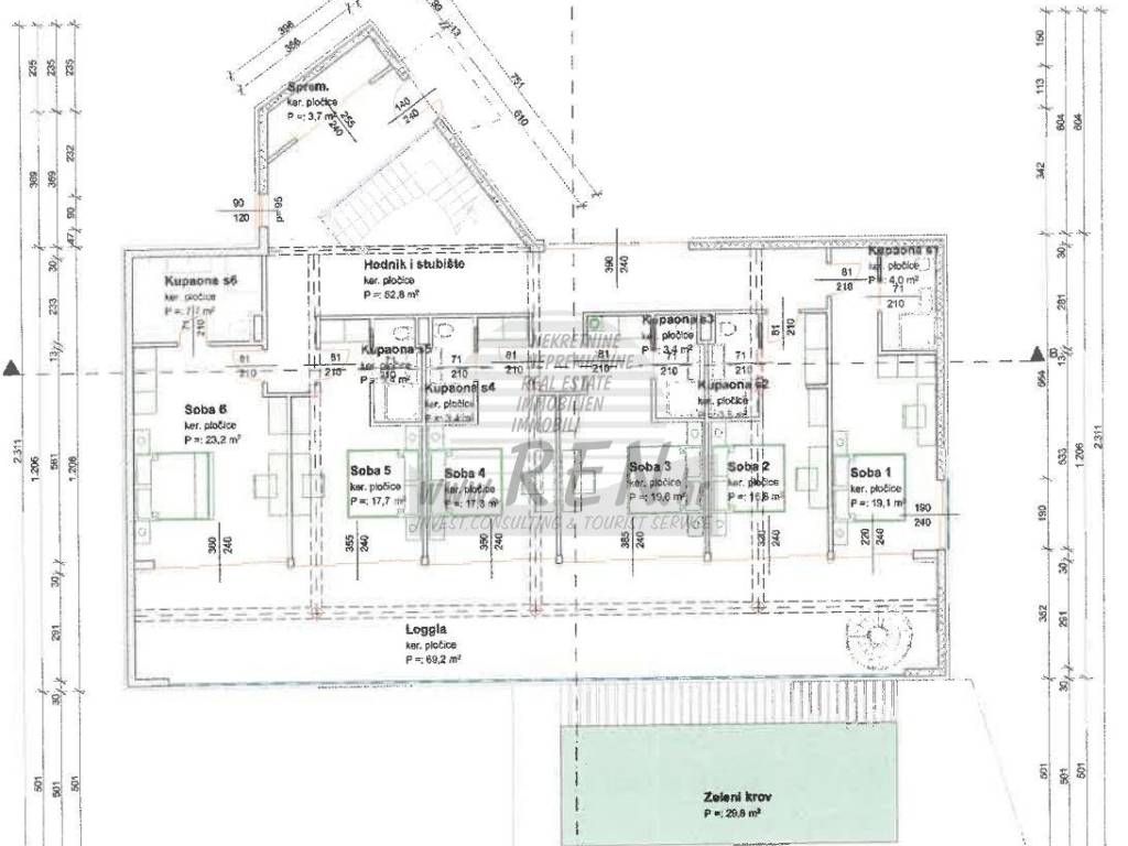
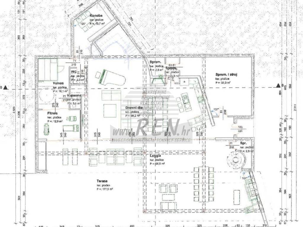
Single family villa 450 m², Buje
BujePrice on application
Listing updated on 05/13/2026
Features
- Type
- Single family villa
- Contract
- Sale
- Floor
- 1
- Building floors
- 2
- Surface
- 450 m² | commercial 2,178 m²
- Rooms
- 5+
- Bathrooms
- 3+
- Garage, car parking
- 1 parking space
Surface detail
Residential
- Floor
- 1
- Surface
- 450.0 m²
- Coefficient
- 100%
- Surface type
- Main
- Commercial area
- 450.0 m²
Land
- Floor
- Ground floor
- Surface
- 1,728.0 m²
- Coefficient
- 100%
- Surface type
- Accessory
- Commercial area
- 1,728.0 m²
Price information
- Price
- Price on application
Energy efficiency
Year of construction
2023Energy certification
Not classifiable
Discover every corner of the property
Additional options